EasyManua.ls Logo

ESAB 200i - Page 247

ESAB 200i
254 pages
Print Icon
To Next Page IconTo Next Page
To Next Page IconTo Next Page
To Previous Page IconTo Previous Page
To Previous Page IconTo Previous Page
Loading...
100i / 200i / 300i / 400i
Manual PN: 0560956430 APPENDIX A-23
Art # A-11977_AD
Art # A-11977_AD
1
1
2
2
3
3
4
4
5
5
6
6
7
7
8
8
9
9
10
10
F
F
E
E
D
D
C
C
B
B
A
A
Rev
Revision
By
Date
Rev
Revision
By
Date
042X1347
C
2 2
10/5/2012
DAT
Drawn
Date
Sheet
of
Size
Drawing Number
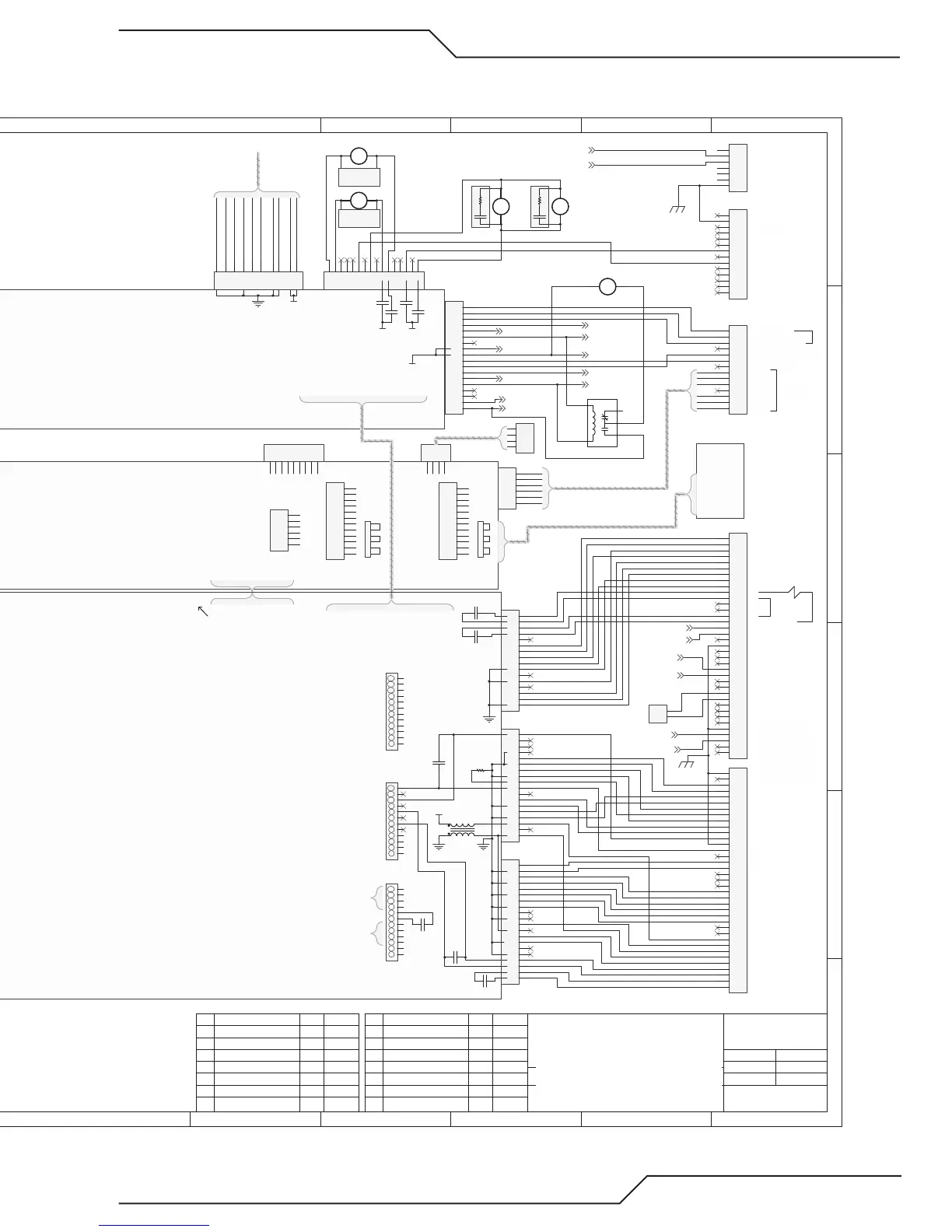
SCHEMATIC
Ultra-Cut XT 300A 480V
Title
12/16/2014
Date Printed
Date Revised
11/20/2014
00 Initial Design DAT 10/03/2012
1
2
3
4
5
6
7
8
9
10
11
12
13
14
J54 - Remote HMI & CNC COMM
1
2
3
4
5
6
7
J70 - HE
1
2
3
4
5
6
7
8
9
10
11
12
13
14
J59 - RAS
1
2
3
4
5
6
7
8
9
10
11
12
13
14
15
16
17
18
J10
HMI/GCM
1
2
3
4
5
6
7
8
9
10
11
12
J9
BIAS TRANSFORMER
7 - Key Plug
1 - 24 VAC
2 - 24 VAC Ret
230 VAC to HE 400
230 VAC Ret
120 VAC to RAS
120 VAC Ret
AC 24V-GCM1
AC 24V Ret-GCM2
AC 24V Ret- GCM1
AC 24V GCM1
AC 24V-TB4-2
AC 24V- Ret -TB4-1
AC 120V - GCM
AC 120V - GCM
AC 120V- Ret- GCM
AC 120V- Ret- GCM
AC 120V- Ret- TB4-3
AC 120V- TB4-4
AC 24V GCM2
AC 24V-GCM2
AC 24V Ret - GCM1
1
2
3
4
5
6
7
8
9
10
11
12
13
14
15
16
J26
15 - Key Plug
1
2
3
4
5
6
7
8
9
10
11
12
13
14
15
16
17
18
19
20
J22
J23- 40 ckt ribbon cable
RELAY & INTERFACE PCB
CPU PCB (CCM)
I-O PCB (CCM)
J4 -- 40 CKT RIBBON CABLE
1
2
3
4
J6
TORCH FLOW SENSOR
1
2
3
4
5
6
J2
TEMP SENSOR
1
2
3
4
5
6
7
8
J7
LEVEL SENSORS
1
2
J5
COOLANT FLOW SW
1
2
3
4
5
6
7
8
J24
J29 30 CKT PIN HEADER
J29 30 CKT RECEPTACLE - BOTTOM ENTRY
AC 24V - RET - GCM2
J17
16 CKT RIBBON
Display PCB
230 VAC
460V
400V
220V
0 V
MC3A
MC3B
24V
24V RET
120V_2
MC2A
MC2B
TS1
COOLANT
TS2
AMBIENT
6-HMI Plasma Enable SW
5-HMI Plasma Enable SW
3- Jum
p
er to 24 VAC
8 - Tx+
12 - Tx-
13 - Rx+
14 - Rx-
9 - GND
10 - GND
RS 485
/ 422
Comm
1
2
3
4
5
6
7
8
9
10
11
12
13
14
15
16
J8
CONTROL OUTPUTS
MC2
Fan Control
MC3
Pump Motor Control
M1
Torch Coolant Pump
J28 30 CKT PIN HEADER
J28 30 CKT RECEPTACLE - BOTTOM ENTRY
1
2
3
4
5
6
J30
(115)
(116)
(117)
(118)
(119)
(120)
Harness
Harness
W2
W1
TO PILOT PCB
TO HCT1 (Work)
+15 VDC
-15 VDC
COMMON
SIG (+)
FS1
COOLANT
CB2 5 A
CB3 5 A
CB4 5 A
230 VAC _ SW
230 VAC _ SW _ RET
230 VAC _ SW
230 VAC _ SW _ RET
230 VAC_SW
goes to J70
for HE 400
120V-1 RET
120V_2 RET
Harness from System Bias PCB
120 VAC_1
24 VAC
24 VDC
PILOT A SIG Vin+
PILOT A SIG Vin-
/ PILOT ENABLE
/ PILOT ENABLE RET
10 CKT RIBBON
J37
1
2
3
4
5
6
7
8
9
J38
RS 232 D-SUB
SERIAL PROG
PORT
1
2
3
4
J39
USB
PORT
1
2
3
4
5
6
7
8
9
10
11
12
J20
2 WIRE 4 WIRE
1
2
3
4
5
6
7
8
9
10
11
12
J19
NORMAL PROGRAM
J31 - 30 CKT RIBBON
J32 - 30 CKT RIBBON
J33 - 30 CKT RIBBON
J35 - 30 CKT RIBBON
J36 - 30 CKT RIBBON
To J100 of IM #2A
To J100 of IM #3A
To J100 of IM #3B
TIP VOLTS
WORK
ARC VOLTS
Harness from Pilot PCB J45
0.7 GPM
1
2
3
4
J1
WORK CURRENT SENSOR
1
2
3
4
5
6
7
8
9
10
J3
PILOT PCB
GND
1
2
3
J16
To J100 of IM #1A
To J100 of IM #1B
1
2
3
4
5
6
J18
PROG
USB IC
GAS ON
ENABLE
PLAS_ENABLE SW
PLAS_ EN_SW_RET
/ GAS PRESS OK
GND
/ BASIC ID
1
2
3
4
5
6
7
8
9
10
11
12
13
14
15
16
17
18
J21
GND
+10V
OK
GND
1
2
3
4
5
6
J14
120V_1
BLUE
BLUE
RED
RED
YELLOW
YELLOW
J12 = Mini-Fit Jr
400 VAC -- Single 18 AWG in pins 1 & 4
480 VAC -- Single 18 AWG in pins 1 & 8
230 VAC -- 18 AWG wires in pins 1,5,2,6
1
2
3
4
5
6
7
8
J12
1 2 3 4
5 6 7 8
1
2
3
4
J13
J13 to CB5
and to MC2
& MC3, also
J14, J16
all 18 AWG
19X501200
019X501700
19X501100
(29)
(30)
(31)
(32)
(33)
(34)
(35)
(36)
(37)
(38)
(39)
(40)
(41)
(42)
1
2
3
4
5
6
7
8
9
10
11
12
13
14
J27
24 VDC
24 VDC
24 VDC_RET
24 VDC_RET
MISSING PHASE a
MISSING PHASE b
AC V HIGH a
AC V LOW a
AC V LOW b
AC V HIGH b
VAC_IDA a
/ VAC_IDA b
VAC_IDB a
/ VAC_IDB b
(43)
T1
(57)
(58)
(59)
(56)
1
2
3
4
J47
USB Cable to Front Panel
8- COMM Ref (1K Ohm)
* Used with Momentary CNC Start SW
1
2
3
4
5
6
7
8
9
10
11
12
13
14
15
16
17
18
19
20
21
22
23
24
25
26
27
28
29
30
31
32
33
34
35
36
37
J15-CNC
1
2
3
4
5
6
7
8
9
10
11
12
13
14
15
16
17
18
19
20
21
22
23
24
25
26
27
28
29
30
31
32
33
34
35
36
37
J55 - GCM
(65B)
(66)
(67)
(69)
(70)
(64B)
(69)
(70)
(70)
)96()96(
(70)
(71) (72)
(73)
(74) (75)
(76)
(77) (78)
(79)
(53)
(51)
(55)
(83)
(84)
(89)
(90)
(93)(92)
(94)
(95)
(96)
1
2
J74
(96)
(97)
(98)
(99)
(100)
(97)
(98)
(99)
(100)
(101)
(102)
(103)
(104)
(106)
(108)
(109)
(110)
(111)
(101)
(102)
(108)
(109)
(113)
(121)
Tx+
GND
GND
Tx-
Rx+
Rx-
(120)
(119)
(118)
(117)
(116)
(115)
4- / CNC Start (-)
6- Divided Arc V (+)
5- Divided Arc V (-)
12- OK to Move (-)
14- OK to Move (+)
7- / Preflow ON (+)
9- / Preflow ON (-)
30- Remote CC (analog)
29- Remote CC Pot High
31- Remote CC Pot Low
16- / Hold Start (+)
17- / Hold Start (-)
3- / CNC Start (+)
21- / Plasma Mark (+)
22- / Plasma Mark (-)
25- / CNC Plasma Enable (+)
26- / CNC Plasma Enable (-)
32- Stop SW (momentary) *
33- Stop SW R
et
34- Pilot is ON (a)
35- Pilot is ON (b)
36- Spare OUT #1 (a)
37- Spare OUT #1 (b)
(121)
(122)
(123)
(124)
(125)
(126)
(127)
(128)
(129)
(130)
(122)
(123)
(124)
(125)
(126)
(127)
(128)
(129)
(130)
(131)
(132)
(133)
(137)
(112)
(114)(131)
(132)
(133)
(103)
(110)
(104)
(111)
5- POT HIGH (GCM 1000)
6- POT WIPER (GCM 1000)
7- POT LOW (GCM 1000)
1- PLAS_ENABLE SW *
2- PLAS_ EN_SW_RET
4- / GAS PRESS OK
9- / BASIC ID **
(60)
(61)
(62)
(63)
(106)
(113)
(112)
(114)
(136)
(134)
(135)
(139)
(138)
(134)
(135)
(136)
(137)
(138)
(139)
(140)
(141)
(143)
(142)
(144)
(145)
(146)
(148)
(140)
(141)
(142)
(143)
(144)
(145)
(146)
(148)
(147)
(149)
(150)
(147)
(149)
(150)
(151)
(152)
(153)
(154)
(155)
(156)
(151)
(152)
(153)
(154)
(155)
(156)
(157)
(158)
(159)
(157)
(158)
(159)
PSR
SPARE #1a
GCM 1000 XT
Jumper
15- 24 VAC - RET
10-
11-
14-
J15-1 to chassis used for
SC-11 cable shield
J15-13 connects SC-11
chassis to PS chassis.
The COMM Ref at pin 8
is also for the SC-11
(65A)
(65A)
(160)
(161)
(162)
(163)
3 - Key Plug
. 230V 400V 480V ERR
J62-12 (/VAC_IDAb) 0 1 0 1
J62-14 (/VAC_IDBb) 0 0 1 1
Measure relative to TP1 (24VDC_RET)
"0" = 10-12V "1" = 24V
(70)
(69)
1
2
3
4
J71
(80)
(81)
(82)
r
b
g
1
2
3
FL1
+10V (CC Pot Hi)
CC Pot Wiper
CC Pot Low
Div Arc V (+)
Div Arc V (-)
/Start - Stop (+)
/Start - Stop (-)
Stop Mom NC
OK2 (contact)
/ CNC Enable (+)
/ CNC Enable (-)
OK2 (contact)
OK to MOVE (+)
OK to MOVE (-)
PILOT is ON
PILOT is ON
Preflow ON (+)
Preflow ON (-)
Hold Start (-)
Hold Start (+)
1
2
3
4
J49
SA3
ARC_SUPPRESSOR
SA4
ARC_SUPPRESSOR
SA1
ARC_SUPPRESSOR
SA2
ARC_SUPPRESSOR
D2, GREEN, 1TORCH GAS ON
D7, GREEN, PILOT ENABLED
D11, GREEN, PILOT CURRENT
D12, GREEN, WORK CURRENT
D22, GREEN, CONTACTORS ON
D23, GREEN, RF ON
D24, GREEN, FANS ON
D25, GREEN, PLASMA ENABLED
D26, GREEN, 1TORCH ON
D27, GREEN, COOLANT ON
I / O PCB LEDS
----------------------------------------------
D2 CNC PLASMA ENABLE
D3 E-STOP_PS
D4 GAS ON (Auto-cut, PAK)
D6 CNC START
D8 HOLD START
D12 PREFLOW ON
D13 CSD (corner current reduction)
D18 MARK
D20 SPARE
D25 EXP METAL
D33 OK_CNC
D37 PSR
D41 SPARE OUT 2
D43 SPARE OUT 1
I / O PCB TEST POINTS
-------------------------------------
TP1 PCB COMMON
TP2
COOLANT FANS ON
TP3 PUMP ON
TP4 LOW FLOW (SW)
TP5 FLOW SIGNAL (pulse, Ultracut only)
TP6 +15VDC_ISO (ref to TP10)
TP7 -15VDC_ISO (ref to TP10)
TP8 +16-18 VDC_ISO (ref to TP10)
TP9 ANALOG CURRENT SIGNAL
(remote & Autocut only)
TP10 ISOLATED VOLTAGE COMMON
TP11 1 TORCH CONTACTOR ON
TP12 +5 VDC
TP13 -15 VDC
TP14 +15 VDC
TP15 +24 VDC
TP18 +5 VDC_ISO (ref to TP10)
CPU PCB LEDs
----------------------------
D2 RXD (red)
D3 TXD (red)
D4 CAN BUS (slave)
D7 CAN BUS (MAIN)
D11 5 VDC POWER
D17 STATUS CODE
D18 INITIALIZING /
PROGRAMMING (red)
CPU PCB TEST POINTS
--------------------------------------------
TP1 GND (
PCB common)
TP2 +5V_ISO (REF TP5)
TP3 +24 VDC
TP4 +3.3V
TP5 GND_ISO
TP6 +5.0 V
TP7 TOTAL DEMAND
(3.3V = 400A)
TP9 /WR
TP10 /RD
TP11 CPU TEMP SENSE
TP12 +3.3VA
TP13 -15VDAC
TP14 PC2
TP15 +15VDAC
TP16 CLKO
TP18 OSC_CLOCK
+5VDC
SIGNAL (pulse)
I / O PCB DIP SW
---------------------------------------------
SW6 OK TO MOVE
(CONTACTS, VOLTS)
SW11 ANALOG CC SOURCE
SW12 DIVIDED ARC VOLTAGE
(50:1, 16.7:1, 30:1, 40:1, 25:1)
CPU PCB DIP SW
---------------------------------------------
SW1 AUTO PILOT RESTART
SW3 PREFLOW TIME
SW4 POSTFLOW TIME
SW5 FUNCTION
SW8 SYSTEM CONTROL
(pilot time, etc.)
SW9 RESERVED (future)
SW10 ADDRESS (default = 0)
SW13 UNIT TYPE (AC / UC)
SW14 LINE TERMINATION
(serial comm.)
1
2
3
J73
LS1
COOLANT LEVEL
019X501800
1
2
3
4
5
6
7
8
9
10
11
12
TB2
1
2
3
4
5
6
7
8
9
10
11
12
TB1
(Sht 1 F2)
(Sht 1, B8)
(Sht 1, C,D6)
(Sht 1, B,C6)
(Sht 1, A,B6)
From Sys Bias J63
(Sht 1, F2)
(A9)
(D2)
(D2)
J34 - 30 CKT RIBBON
N/C
(64A)
(64A)
(64B)
4102/61/9TADAA
(44A)
MC1A
R2
4.7 30W
(87)
(63)
(62)
1
5
3
2
4
INRUSH CONTROL
K1
MC1
120VAC
(60)
(107)
(62)
(63)
(61)
(107)
CHASSIS GND
CHASSIS GND
CHASSIS GND
CHASSIS GND
(166)
(167)
28- GAS SEL SW
27- GAS SEL SW RET
1
2
J69
* Plasma Enable SW
in GCM 2010.
Jumpered in
GCM 1000 XT
and DMC 3000.
** Jumper in
GCM 1000 XT
3- GAS PRESS OK RET
8- BASIC ID RET
120 VAC_2
120VAC_1
120VAC_2
24VAC
Test Points
TP1, GND
TP2, -15V
TP3, +5VDC
TP4, +12V
TP5, +24V
TP6, +15V
TP7, +5VDC
1
2
3
J72
C4
FAN1
R
R
BK
BN
BL
DAT 10/17/2014AB ECO-B2687
/ Plasma Marking (+)
/ Plasma Marking (-)
Spare #1b NO
1
2
3
4
5
6
7
8
9
10
11
12
TB3
Spare
Digital
Inputs
Spare
Digital
Inputs
1
2
3
4
5
6
7
8
9
10
11
12
13
14
J11
1 TORCH INTERFACE
1
2
3
J85
1
2
3
4
5
J84
Refer to 1 Torch Module Schematic for Details
23- / Spare Digital Input(+)
24- / Spare Digital Input (-)
10- / Spare Digital Input (+)
11- / Spare Digital Input (-)

Table of Contents

Other manuals for ESAB 200i

Related product manuals