EasyManua.ls Logo

ESAB 200i - 3.02 System Layout 100 i - 200 i Amp

ESAB 200i
254 pages
Print Icon
To Next Page IconTo Next Page
To Next Page IconTo Next Page
To Previous Page IconTo Previous Page
To Previous Page IconTo Previous Page
Loading...
100i / 200i / 300i / 400i
32 INSTALLATION Manual PN: 0560956430
Cooling System Requirements
Coolant must be added to the system on installation. The amount required varies with torch leads length.
ESAB recommends the use of its coolants 7-3580 and 7-3581 (for low temperatures).
Coolant Capabilities
Cat. Number and Mixture Mixture Protects To
7-3580 ‘Extra-Cool™’ 25 / 75 10° F / -12° C
7-3581 ‘Ultra-Cool™’ 50 / 50 -27° F / -33° C
7-3582 ‘Extreme Cool™’ Concentrate* -76° F / -60° C
* For mixing with D-I Cool™ 7-3583
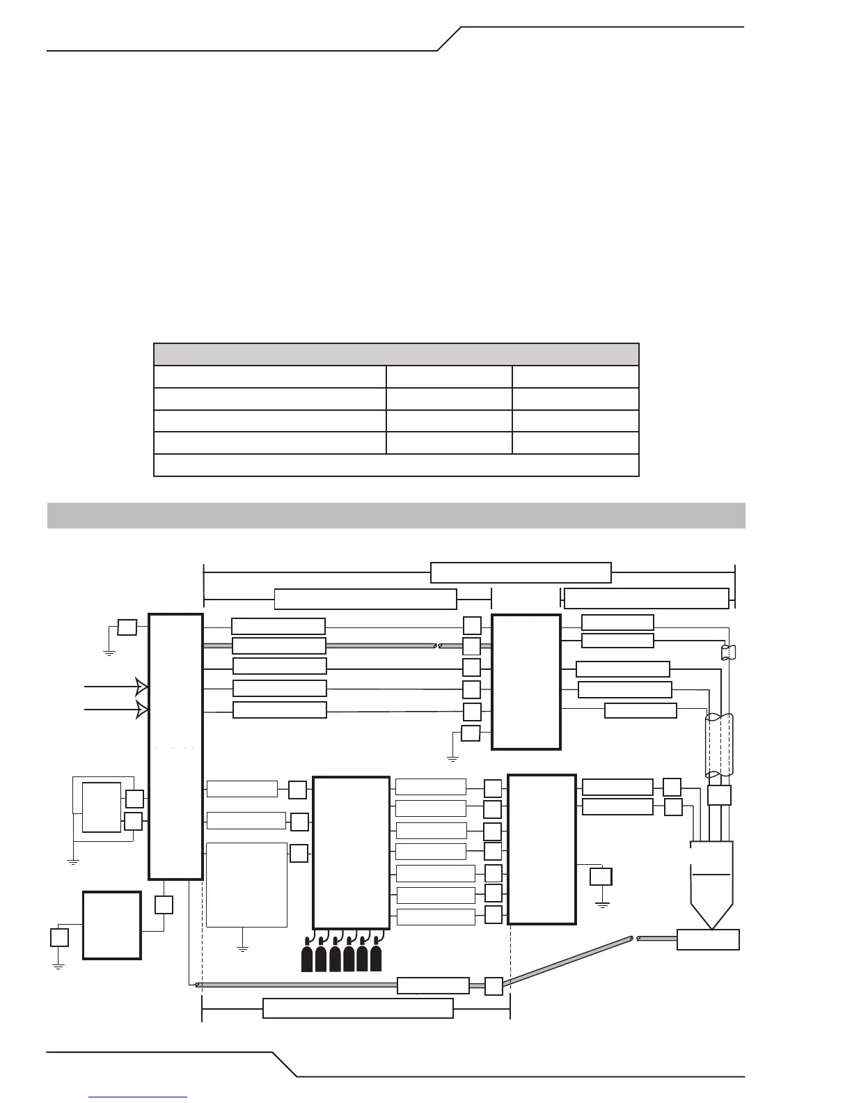
3.02 System Layout 100i - 200i Amp
Refer to section 3.08 and 3.10 for ground connections and ground cables.
Primary power
Work
CNC
Remote
Arc
Starter
Art # A-11995
Torch
Coolant Supply
Coolant Return
Control Cable
Pilot Return
Coolant Supply
Coolant Return
Plasma Gas
Shield Gas
Work Cable
DMC-3000
Gas
Console
Ultra-Cut
Power
Supply
DPC-3000
Gas
Control
Positioning Tube
Plasma Gas
Marking
Shield
Shield Gas
Negative
Pilot Return
Control Cable
100’ / 30.5 m Maximum Length
Shield
H
Q
R
U
S
A
B
C
D
E
P
K
L
O
I
J
G
175’ / 53.3 m Maximum Length
Preflow
Fiber Optic
L
Water Shield
T
125’ / 38.1 m Maximum Length
175’ / 53.3 m Maximum Length
Fiber Optic
Control Cable
F
Touch
Screen
Controller
V
W
F1
F1
F
F
Ground Cable
to PS Only
When DMC
Mounted On
Top Of PS
-If not - Earth-
Gas Supply
The customer must supply all gases and pressure regulators. Gases must be of high quality. Pressure regulators must
be double-stage and installed as close as possible to the gas console. Contaminated gas can cause one or more of the
following problems:
Reduced cutting speed
Poor cut quality
Poor cutting precision
Reduced consumables life.
Oil or grease contamination from compressed or bottled air can cause fires in conjunction with oxygen.

Table of Contents

Other manuals for ESAB 200i

Related product manuals