EasyManua.ls Logo

ESAB CUTMASTER A60 - Appendix 5: System Schematic, 208;460 V Units

ESAB CUTMASTER A60
112 pages
Print Icon
To Next Page IconTo Next Page
To Next Page IconTo Next Page
To Previous Page IconTo Previous Page
To Previous Page IconTo Previous Page
Loading...
CUTMASTER A60
APPENDIX 0-5428
A-6
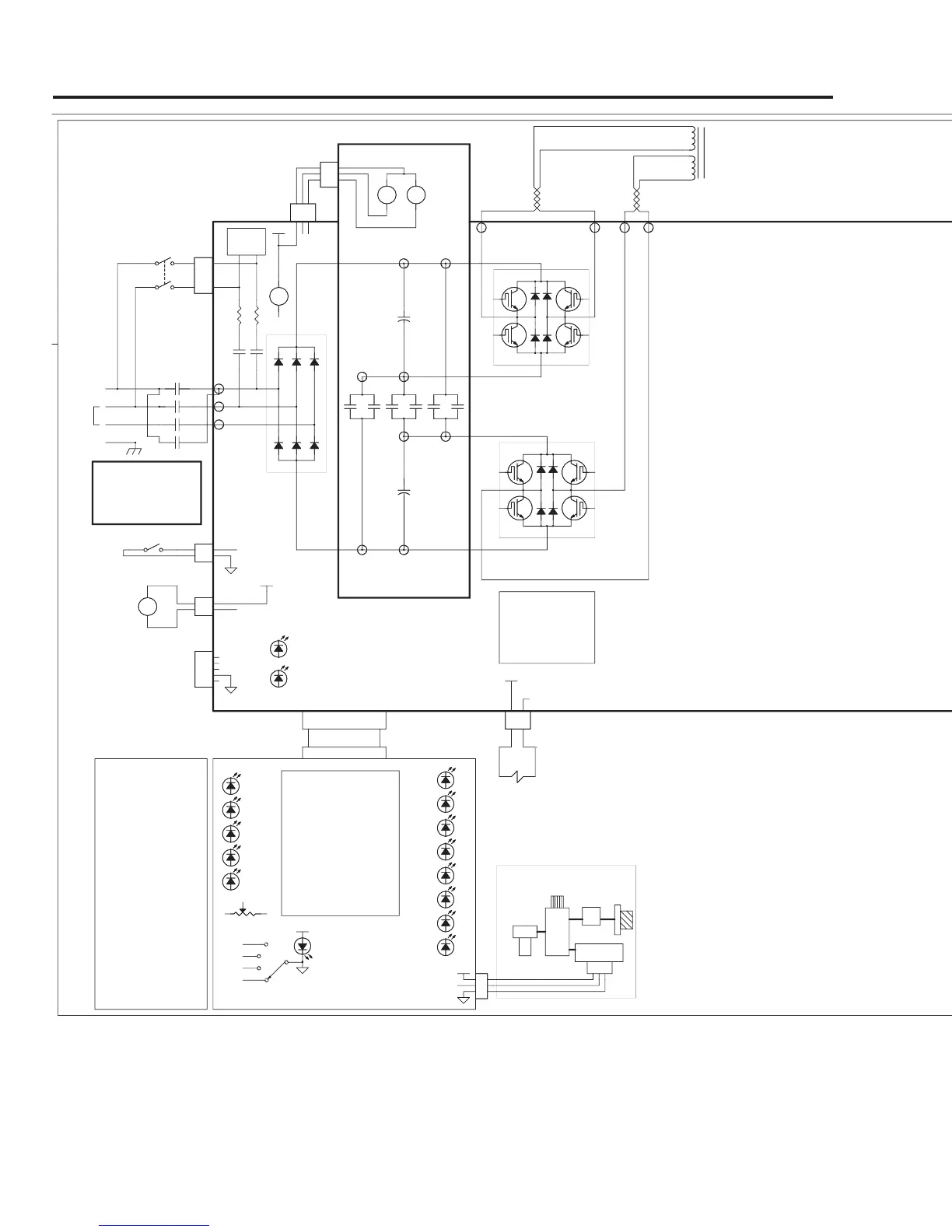
APPENDIX 5: SYSTEM SCHEMATIC, 208/460V UNITS
24VAC
+12VDC
+12VDC
+12VDC
+12VDC
+12VDC
+12VDC
+5VDC
+12VDC
42X1298
42X1298
4
2
X
1298
42X129842X129842X1298
AB
24 VAC RETURN
J1
80
OVER PRESSURE
INTERNAL ERROR
SHORTED TORCH
CONSUMABLES MISSING
START ERROR
PARTS IN PLACE
INPUT POWER
UNDER PRESSURE
81
ERROR IND FAULT
PCB3
8
9
82
7A
OK-TO-MOVE
83
OK TO MOVE
1TORCH
Q2
PRIMARY POWER CONNECTIONS:
3PH USE L1,L2,L3 & GND
REMOVE JUMPER BETWEEN L2 TO L3
1PH USE L1, L2 & GND -
INSTALL JUMPER BETWEEN L2 TO L3
*
5
6
}
1
2
3
4
5
6
7
8
9
10
11
12
13
14
15
16
17
18
19
20
21
22
23
24
25
26
29
34
35
36
37
38
39
}
E64
E35
78
79
INPUT VOLTAGE SELECTOR
(Closed for 230VAC input)
-
+
-V_OUT_SIGNAL
/TIP_VOLTS
/TIP_SENSE
/460V_IN
/230V_IN
CUR_SET
/RAR (RAPID AUTO RESTART)
/INRUSH
/W1_ON
/SHDN
/TORCH_SOLENOID
/SOLENOID_ON
/OK_TO_MOVE
/FAN_ON
/LATCH_ACTIVE
/TORCH_SWITCH
/PIP
AC_ON
CSR
/TORCH_SOLENOID_DETECT
/OVERTEMP
V_IN
+12VDC
+12VDC
COMMON
COMMON
MAIN_PCB_ID
460_IN
+3.3VDC
TXD
RXD
COMMON
D
M-L
M-L
M-L
L-M
L-M
L-M
L-M
L-M
L-M
L-M
L-M
L-M
L-M
L-M
L-M
M-L
M-L
M-L
M-L
M-L
M-L
M-L
M-L
M-L
M-L
M-L
M-L
M-L
L-M
M-L
M-L
L-M
M-L
FULL FEATURED AUTOMATION INTERFACE PCB OPTION
CNC INTERFACE STANDARD ON A40 & A60 UNITS
CNC INTERFACE OPTIONAL ON CM52 & CM82 UNITS
*
L1
L2
L3
L4
T1
T2
T3
T4
* CM52 & A40
C3 & C5 not installed
/PIP
PCB2
/SOLENOID
Q1
PRIMARY
AC INPUT
/START
PCB1
NAFNAF
24VAC RETURN
ATC CONNECTOR
/FAN/FAN
24VAC SUPPLY
40 PIN RIBBON CABLE SIGNALS
460_IN
LATCH
SET
RUN
RAR
40 CIRCUIT
RIBBON CABLE
MAX
90
85
80
75
70
65
MIN
/460
/230
J2
7
JUMPER
D1
L1
L2
L3
GND
DC
AIR
INLET
FILTER
REGULATOR
(5A @250VAC / 30VDC)
SOLENOID
VALVE
/START / STOP
TP1
TP2
TP3
TP4
TP5
TP6
TP7
ATC
MAIN PCB ASSY
LOGIC PCB
INPUT CAPACITOR PCB
GAS CONTROL
GND
+12 VDC
+5 VDC
3.3 VDC
0.v - 5.0 VDC / 0-100PSI
1.8 VDC
POT. DEMAND
J2 PINOUT
TEST POINTS
GND1
GND2
GND3
+12V1
48V1
I_DMD_1
TIP_SEN
COMMON
COMMON
COMMON
+12 VDC SUPPLY
+48 VDC SUPPLY
CURRENT DEMAND
TIP DRAG SENSE
TEST POINTS
(Sink 50mA @12VDC)
AUTOMATION
TORCH SOLENOID
PRESSURE
TRANSDUCER
0-100PSI / 0-4.5VDC
INRUSH
RESISTORS
/INRUSH
/OVERTEMP
TEMP
CIRCUIT
D3
CM82 / A60 ONLY
3.3VDC
TXD
RXD
D
SERIAL PORT
BIAS
SUPPLY
SEC1SEC1
WORK1WORK1
Q5
PILOT IGBT
Q5
PILOT IGBT
CHOKE1CHOKE1
PRI 2 PRI 2
D1D1
J3J3
1
2
3
NTCNTC
J3J3
1
2
3
W1W1
K3K3
+
C1-C4*
+
C1-C4*
MTH1MTH1
J4J4
1
2
3
4
5
W1W1
MOT1MOT1
+ -
7070
AC3AC3
9090
1
2
3
J1J1
1
2
3
4
5
6
7
8
MTH4MTH4
TIP1TIP1
J7J7
1
2
K6K6
6565
PRI 1 PRI 1
J9J9
1
2
3
4
5
6
7
DCDC
MOT2MOT2
+ -
7575
MTH7MTH7
TS1TS1
SW1SW1
1 3
2 4
P10P10
1
2
3
4
5
6
7
8
J1J1
1
2
3
4
5
K1K1
PRI 4 PRI 4
WORKWORK
8080
SEC2SEC2
OVERTEMPOVERTEMP
8585
AC2AC2
Current ControlCurrent Control
L1L1
MTH3MTH3
MTH5MTH5
J3J3
1
2
D78 CSRD78 CSR
J8J8
1
2
J6J6
1
2
ERRORERROR
D59 PCRD59 PCR
MTH6MTH6
MAXMAX
SW2SW2
J5J5
1
2
3
J11J11
1
2
T1T1
-V OUT 1-V OUT 1
AC1AC1
TORCH SWITCHTORCH SWITCH
MTH2MTH2
MTH8MTH8
GASGAS
ELECTRODE1ELECTRODE1
K1-K4K1-K4
J10J10
3
5
6
7
8
1
2
4
PRI 3PRI 3
ACAC
K4K4
K5, K6K5, K6
+
C5-C8*
+
C5-C8*
J12J12
1
2
3
J2J2
2
3
4
5
6
7
8
9
10
11
12
13
14
1
K2K2
SOL1SOL1
PIP SWITCHPIP SWITCH
1
2
3
4
5
6
7
8
K1K1
MINMIN
K5K5
A-12NEW
A-12NEW
ISO GND
+12V
-
1
2
3
4
5
6
7
8
9
10
11
12
13
14
J1
1
2
3
4
5
6
7
8
*
J2
OK TO MOVE
ISO GND
SW1
DIVIDED ARC VOLTAGE (-)
DIVIDED ARC VOLTAGE (+)
COMMON
PLATE CONTACT COM
PLATE CONTACT OUT
OK TO MOVE
OK TO MOVE
OHMIC
START / STOP (com)
START / STOP
OK TO MOVE
1
-V0_1
1
TIP
To -V OUT 1
on PCB1
OHMIC
SENSE
CIRCUITS
VOLTAGE
DIVIDER
CIRCUITS
+
To TIP1
on PCB1
1
2
3
4
5
6
7
8
P10
PCB4
AUTOMATION
INTERFACE PCB
(w / OHMIC)
START / STOP
DIV1-1 ON = 16.7:1 for SC11
DIV1-2 ON = 20:1 for ESAB
DIV1-3 ON = 30:1
DIV1-4 ON = 40:1 for Inova
DIV1-5 ON = 50:1 for IHT:
SC3000 & 3100; Hypertherm
®
DIV1-6 ON = 80:1 for TD iHC
DIVIDE RATIO SET BY DIP SW DIV1
CONTACT
OK to MOVE
M-ARC
START
123456
DIV1
CONTACT

Table of Contents

Related product manuals