EasyManua.ls Logo

ESAB CUTMASTER A60 - Appendix 6: System Schematic, 400 V;600 V Units

ESAB CUTMASTER A60
112 pages
Print Icon
To Next Page IconTo Next Page
To Next Page IconTo Next Page
To Previous Page IconTo Previous Page
To Previous Page IconTo Previous Page
Loading...
CUTMASTER A60
APPENDIX 0-5428
A-8
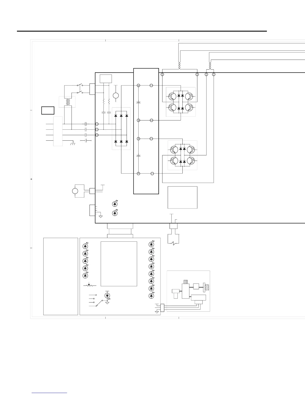
APPENDIX 6: SYSTEM SCHEMATIC, 400V/600V UNITS
A-12???
A-12new
5
5
4
4
3
3
2
2
1
1
D
D
C
C
B
B
A
A
24VAC
+12VDC
+12VDC
+12VDC
+12VDC
+12VDC
+12VDC
+5VDC
+12VDC
42X1329
42X1329
4
2
X
1329
42X132942X132942X1329
AB
24 VAC RETURN
J1
80
OVER PRESSURE
INTERNAL ERROR
SHORTED TORCH
CONSUMABLES MISSING
START ERROR
PARTS IN PLACE
INPUT POWER
UNDER PRESSURE
81
ERROR INDFAULT
PCB3
8
9
82
7A
OK-TO-MOVE
83
OK TO MOVE
1TORCH
Q2
PRIMARY POWER CONNECTIONS:
USE L1, L2, L3 & GND
*
5
6
}
1
2
3
4
5
6
7
8
9
10
11
12
13
14
15
16
17
18
19
20
21
22
23
24
25
26
29
34
35
36
37
38
39
}
E64
E35
78
79
-
+
-V_OUT_SIGNAL
/TIP_VOLTS
/TIP_SENSE
/460V_IN
/230V_IN
CUR_SET
/RAR (RAPID AUTO RESTART)
/INRUSH
/W1_ON
/SHDN
/TORCH_SOLENOID
/SOLENOID_ON
/OK_TO_MOVE
/FAN_ON
/LATCH_ACTIVE
/TORCH_SWITCH
/PIP
AC_ON
CSR
/TORCH_SOLENOID_DETECT
/OVERTEMP
V_IN
+12VDC
+12VDC
COMMON
COMMON
MAIN_PCB_ID
460_IN
+3.3VDC
TXD
RXD
COMMON
D
M-L
M-L
M-L
L-M
L-M
L-M
L-M
L-M
L-M
L-M
L-M
L-M
L-M
L-M
L-M
M-L
M-L
M-L
M-L
M-L
M-L
M-L
M-L
M-L
M-L
M-L
M-L
M-L
L-M
M-L
M-L
L-M
M-L
CNC INTERFACE STANDARD ON A40 & A60 UNITS
CNC INTERFACE OPTIONAL ON CM52 & CM82 UNITS
L1
L2
L3
L4
T1
T2
T3
T4
/PIP
PCB2
/SOLENOID
Q1
380/400/415V
OR 600V
3 PH AC INPUT
/START
PCB1
NAFNAF
24VAC RETURN
ATC CONNECTOR
/FAN/FAN
24VAC SUPPLY
40 PIN RIBBON CABLE SIGNALS
LATCH
SET
RUN
RAR
40 CIRCUIT
RIBBON CABLE
MAX
90
85
80
75
70
65
MIN
J2
7
D1
L1
L2
L3
GND
DC
AIR
INLET
FILTER
REGULATOR
(5A @250VAC / 30VDC)
SOLENOID
VALVE
/START / STOP
TP1
TP2
TP3
TP4
TP5
TP6
TP7
ATC
MAIN PCB ASSY
LOGIC PCB
INPUT CAPACITOR PCB
GAS CONTROL
GND
+12 VDC
+5 VDC
3.3 VDC
0.v - 5.0 VDC / 0-100PSI
1.8 VDC
POT. DEMAND
J2 PINOUT
TEST POINTS
GND1
GND2
GND3
+12V1
48V1
I_DMD_1
TIP_SEN
COMMON
COMMON
COMMON
+12 VDC SUPPLY
+48 VDC SUPPLY
CURRENT DEMAND
TIP DRAG SENSE
TEST POINTS
(Sink 50mA @12VDC)
AUTOMATION
TORCH SOLENOID
PRESSURE
TRANSDUCER
0-100PSI / 0-4.5VDC
INRUSH
RESISTORS
/INRUSH
/OVERTEMP
TEMP
CIRCUIT
D3
3.3VDC
TXD
RXD
D
SERIAL PORT
BIAS
SUPPLY
*
EMI
CHOKE
EMI
FILTER
1
2
3
4
1
2
3
4
*
CE UNITS
ONLY
*CM52/12mm/20mm/A40
C3 & C5 may not be installed
WORK1WORK1
SEC1SEC1
D1D1
PRI 2 PRI 2
CHOKE1CHOKE1
Q5
PILOT IGBT
Q5
PILOT IGBT
NTCNTC
J3J3
1
2
3
+
C1-C4*
+
C1-C4*
W1W1
AC3AC3
7070
MOT1MOT1
+ -
W1W1
J4J4
1
2
3
4
5
MTH1MTH1
J7J7
1
2
TIP1TIP1
MTH4MTH4
J1J1
1
2
3
4
5
6
7
8
1
2
3
9090
7575
MOT2MOT2
+
-
DCDC
J9J9
1
2
3
4
5
6
7
PRI 1 PRI 1
6565
J1J1
1
2
3
4
5
P10P10
1
2
3
4
5
6
7
8
SW1SW1
1 3
2 4
TS1TS1
MTH7MTH7
SEC2SEC2
8080
WORKWORK
PRI 4 PRI 4
AC2AC2
8585
OVERTEMPOVERTEMP
MTH3MTH3
L1L1
Current ControlCurrent Control
MTH6MTH6
D59 PCRD59 PCR
ERRORERROR
J6J6
1
2
J8J8
1
2
D78 CSRD78 CSR
MTH5MTH5
-V OUT 1-V OUT 1
T1T1
J5J5
1
2
3
J11J11
1
2
MAXMAX
PRI 3PRI 3
J10J10
3
5
6
7
8
1
2
4
ELECTRODE1ELECTRODE1
GASGAS
MTH8MTH8
MTH2MTH2
TORCH SWITCHTORCH SWITCH
AC1AC1
+
C5-C8*
+
C5-C8*
ACAC
J2J2
2
3
4
5
6
7
8
9
10
11
12
13
14
1
MINMIN
K1K1
PIP SWITCHPIP SWITCH
1
2
3
4
5
6
7
8
SOL1SOL1
ISO GND
+12V
-
1
2
3
4
5
6
7
8
9
10
11
12
13
14
J1
1
2
3
4
5
6
7
8
*
J2
OK TO MOVE
ISO GND
SW1
DIVIDED ARC VOLTAGE (-)
DIVIDED ARC VOLTAGE (+)
COMMON
PLATE CONTACT COM
PLATE CONTACT OUT
OK TO MOVE
OK TO MOVE
OHMIC
START / STOP (com)
START / STOP
OK TO MOVE
1
-V0_1
1
TIP
To -V OUT 1
on PCB1
OHMIC
SENSE
CIRCUITS
VOLTAGE
DIVIDER
CIRCUITS
+
To TIP1
on PCB1
1
2
3
4
5
6
7
8
P10
PCB4
AUTOMATION
INTERFACE PCB
(w / OHMIC)
START / STOP
DIV1-1 ON = 16.7:1 for SC11
DIV1-2 ON = 20:1 for ESAB
DIV1-3 ON = 30:1
DIV1-4 ON = 40:1 for Inova
DIV1-5 ON = 50:1 for IHT:
SC3000 & 3100; Hypertherm
®
DIV1-6 ON = 80:1 for TD iHC
DIVIDE RATIO SET BY DIP SW DIV1
CONTACT
OK to MOVE
M-ARC
START
123456
DIV1
CONTACT
FULL FEATURED AUTOMATION INTERFACE PCB OPTION

Table of Contents

Related product manuals