EasyManua.ls Logo

ESAB MEK 4 - Wiring Diagram (Serial No. 431-xxx-xxxx)

ESAB MEK 4
30 pages
Print Icon
To Next Page IconTo Next Page
To Next Page IconTo Next Page
To Previous Page IconTo Previous Page
To Previous Page IconTo Previous Page
Loading...
-- 5 --cmek0de1
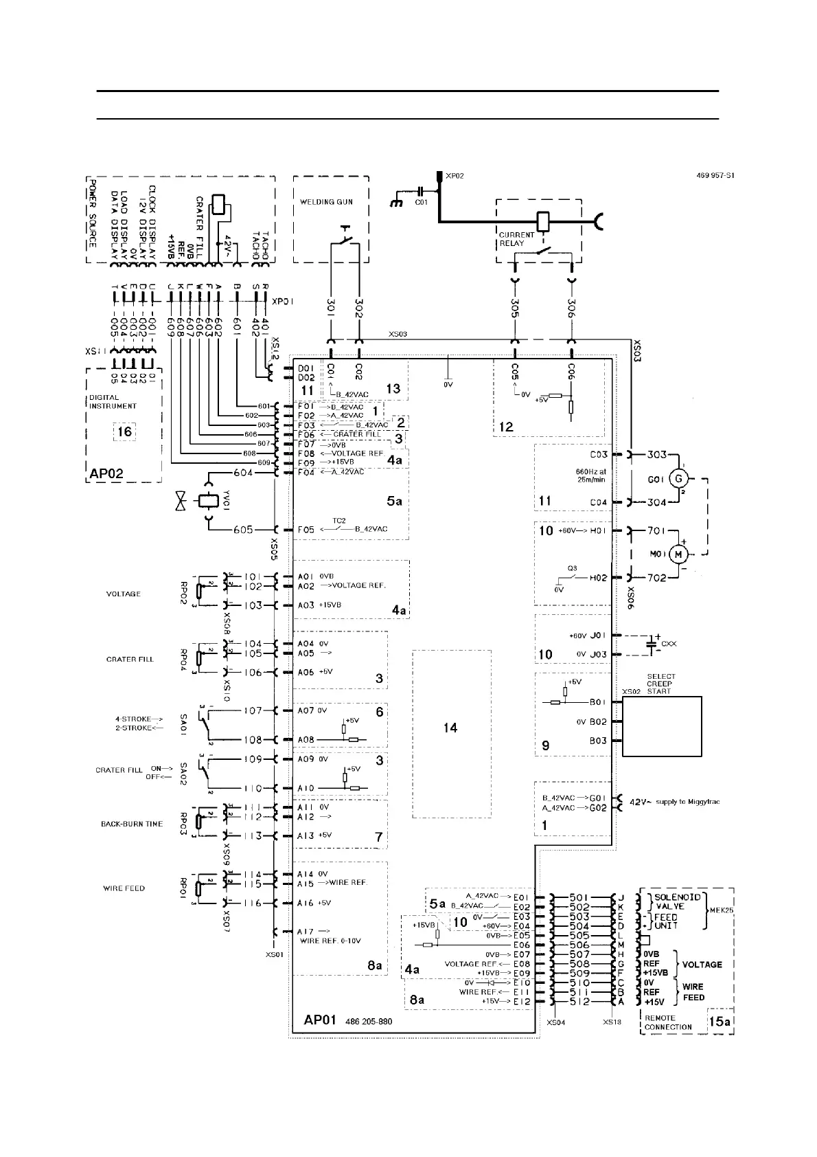
WIRING DIAGRAM Valid for serial no. 431--xxx--xxxx
MEK 4
cmek0e01
See page 17

Related product manuals