EasyManua.ls Logo

FAAC 950 BM - Start-Up; Set Up Process

FAAC 950 BM
30 pages
Print Icon
To Next Page IconTo Next Page
To Next Page IconTo Next Page
To Previous Page IconTo Previous Page
To Previous Page IconTo Previous Page
Loading...
25
ENGLISH ENGLISH
3.3.2. MOUNTING THE SLIDING ARM (fig.6)
1) Mount arm (1) on the operator transmission shaft by means
of the standard shaft (5) and the screw (2) provided (fig.6).
The arm must be fitted pointing 45° outwards as shown in fig.
6(a).
Note: If a larger distance is required between the operator and
the arm use the shaft modular extensions available as accessories,
until the required distance is reached (see Table C/D).
Warning: Mount arm (1) on the transmission shaft before fitting the
operator on the lintel (fig.6).
2) Insert the teflon slide (3) inside the sliding guide (4) (fig.6).
3) Pull arm (1) inwards manually as shown in fig. 6(b) and secure
the sliding guide (4) by means of two M6 screws on the closed
door as shown in Table C/D.
4) Check manually that the door is free to open and close fully
and comes to rest against the mechanical travel stops. If the
door does not close correctly, adjust the return spring as
described in paragraph 9.
4. START-UP
1) Make the electrical connections to the 950 I/O electronic
control unit as described in paragraph 6, and connect the
mains power supply to the specific terminal (fig.1-ref.10)
ensuring to crimp the earth wire to the lug (fig.1-ref.12)
screwed to the support profile (fig.1-ref.2). Then tighten the
terminal (fig.1-ref.13)
To gain access to the control unit, pass the cables through
the special conduit (fig.1-ref.1) or break the knockout areas
on the casing sides (fig.4-ref.6).
IMPORTANT: When mounting the
“sliding” arm or for opening
angles greater than 90°, turn microswitch no. 2 to ON before
connecting power to the system.
2) Close the door.
3) Power up the operator.
4) Check that the green LEDs LD1 and LD3 on the board 950MPS
light up.
5) Check that the status signalling LEDs on the board 950I/O are
in the default status shown in Table 7 .
N.B.: The default status of the LEDs with the door closed at rest is
shown in bold type.
Table 7: Operation of the status signalling LEDs for 950 I/O board
LED ON OFF
LD1 Accessories power present Accessories power absent
LD2 Card Reader active Card Reader inactive
LD3 Internal sensor active Internal sensor inactive
LD4 External sensor active External sensor inactive
LD5 Emergency inactive Emergency active
LD6 STOP safety device inactive STOP safety device active
LD7 CL safety device inactive CL safety device active
LD8 Key active Key inactive
LD9 Fire-alarm active Fire-alarm active
6) Run a SET-UP cycle as indicated in paragraph 4.1.
4.1. SET UP PROCESS
Once the system is powered up, hold down SW1 button for at least
5 sec., until the LD2 red LED on the 950MPS board lights up. The LED
will start flashing to indicate that SET UP process is in progress.
During this process the following parameters are set:
- measuring the mass of the door;
- determining the travel stop positions;
The door opens at low speed, then closes half way before
switching back to opening.
Subsequent closure is performed by the return spring.
The process may be inhibited in any of the following conditions:
- function selector switch in the 2 (MANUAL/NIGHT) position or KP-
CONTROLLER programming unit in MANUAL or NIGHT position.
- incorrect connection of the accessories (electric lock, control/
safety devices);
- incorrect positioning of the programming unit microswitches.
Note: To repeat the initialisation procedure
hold down the SW1
button for more than 5 seconds.
Check that door opens and closes correctly by sending an
opening command to one of the following inputs: Internal Sensor,
External Sensor or Key command. Set the trimmers (par.5.2) and
program the microswitches (par.5.4) according requirements.
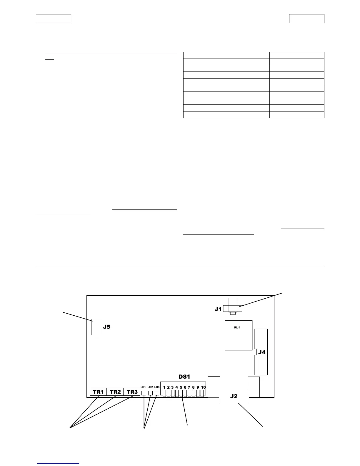
5. 950MPS ELECTRONIC CONTROL UNIT
5.1 LAYOUT AND DESCRIPTION
MICROSWITCHES RS-232 CONNECTOR
ADJUSTING TRIMMER
SIGNALLING LED
MOTOR
CONNECTOR
40VDC
CONNECTOR
Fig. 8

Table of Contents

Other manuals for FAAC 950 BM

Related product manuals