EasyManua.ls Logo

FAAC 950 BM - Page 5

FAAC 950 BM
30 pages
Print Icon
To Next Page IconTo Next Page
To Next Page IconTo Next Page
To Previous Page IconTo Previous Page
To Previous Page IconTo Previous Page
Loading...
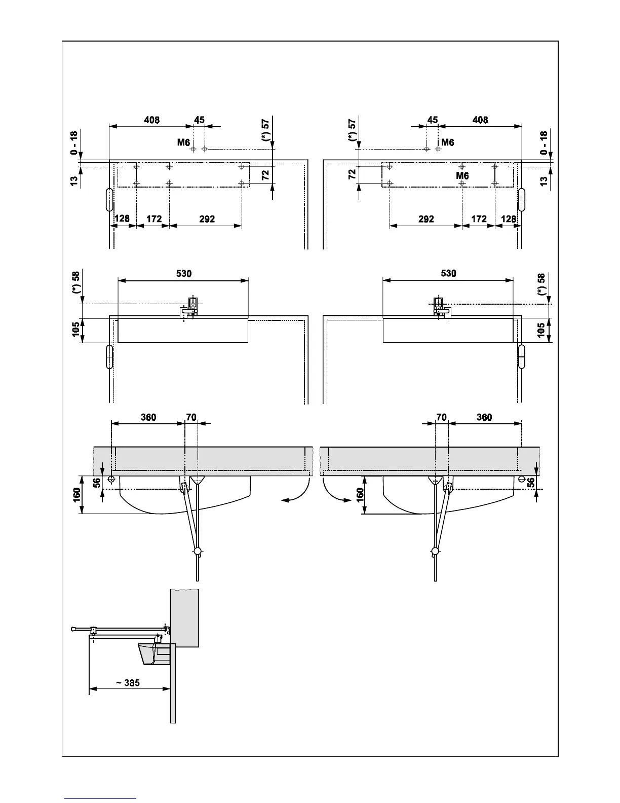
Quota con albero standard.
Nel caso fosse necessario aumentare
la distanza tra l’operatore ed il
braccio, utilizzare le prolunghe
modulari opzionali.
Ciacuna prolunga aumenta il valore
di altezza standard di 30 mm. E’
suggeribile non montare più di 2
prolunghe .
(*)
Distance with standard extension.
If a greater distance between the
operator and the arm is required,
add the optional modular
extensions.
Each modular extension increases
the standard height of 30 mm. It’s
advisable not to place more then
2 extensions.
(*)
Cote avec arbre standard.
Dans le cas d’installation
nécessitant une plus grande
distance entre l’opérateur et le
bras, utiliser les rallonges
modulaires en option.
Chaque rallonge augmente la
hauteur standard de 30 mm. Il est
conseillé de ne pas monter plus
de 2 rallonges.
(*)
(*)
Cota con eje estándar.
Si fuera necesario aumentar la
distancia entre el actuador y el
brazo, utilizar las prolongaciónes
modulares opcionales.
Cada prolungación aumenta la
altura del eje de 30 mm. Se
recomanda de no instalar mas de
2 prolongaciónes modulares.
(*)
Quote in mm · Dimensions in mm · Cotes en mm · Maßangaben in mm · Cotas en mm
Quota con albero standard.
Nel caso fosse necessario aumentare
la distanza tra l’operatore ed il
braccio, utilizzare le prolunghe
modulari opzionali.
Ciacuna prolunga aumenta il valore
di altezza standard di 30 mm. E’
suggeribile non montare più di 2
prolunghe .
Tav.B : MONTAGGIO SULLA PORTA (BRACCIO ARTICOLATO A SPINGERE) · TABLE B: DOOR MOUNTING (PUSHING ARTICULATED ARM)
SCHÉMA B: MONTAGE SUR LA PORTE (BRAS ARTICULÉ Á POUSSER) · ÜBERSICHT B: TÜREINBAU (DRÜCK-GELENKARM)
LÁM. B: MONTAJE EN LA PUERTA (BRAZO ARTICULADO DE EMPUJE)
Piano di foratura · Drilling template · Schéma de perçage · Bohrbild · Plano de perforación

Table of Contents

Other manuals for FAAC 950 BM

Related product manuals