EasyManua.ls Logo

FARFISA INTERCOMS ECHOS - Page 214

FARFISA INTERCOMS ECHOS
236 pages
Print Icon
To Next Page IconTo Next Page
To Next Page IconTo Next Page
To Previous Page IconTo Previous Page
To Previous Page IconTo Previous Page
Loading...
212
(MT11 - Gb2012)
Si 46MO/7
4+1
INTERCOMS *
7+1
VIDEOINTERCOMS
VIDEO INTERCOM SYSTEM WITH ONE-WAY SECONDARY DOOR STATIONS ONLY AUDIO AND 1 MAIN
COMMON VIDEO STATION (multiple entrance)
INTERNAL STATIONS
ECHOS series EXHITO series COMPACT series STUDIO series
... EH9100CT/CW ... EX3100C ... KM8100W ... ST7100CW
EH9160CT/CW EX3160C KM8600W ST7100W
... 9083 EX3160 KM8800W ... ST720W
... WA9100T/W ... WB3160 ... WB8600 ... WB7100
... TA9160 ... TA3160 ... 8083 ... WB700
... TA7100
... TA700
MAIN EXTERNAL DOOR STATION
PROFILO series MATRIX series MODY series
... PL71÷PL73 ... MA72÷MA73 ... MD72÷MD74
1 PL81÷PL89 ... MAS62÷MAS63 (
1
)1 MD82÷MD812
1 PL91÷PL99 * 1 MA92÷MA93 * 1 MD92÷MD912 *
1 PL40PC÷PL42PC 1 MAS42C-MAS43C 1 MD10÷MD124
PL40P÷PL42P MAS42-MAS43 1 MD41
1 MD30
... PL21÷PL228 ... MAS22-MAS24 ... MD21÷MD228
... PL20, PL50 ... MAS20 ... MD20, MD50
SECONDARY EXTERNAL DOOR STATIONS
PROFILO series MATRIX series MODY series
... PL71 ... MA71 ... MD71
X PL81 ... MAS61 (
1
)XMD81
X PL91 * X MA91 * X MD91 *
X MD11
X PL11P X MA11P X MD30
VARIOUS ARTICLES
... DV2-DV4 Video distributors
1 1281 Power supply
1 1282E Timer
X 1473 Exchanger
X PRS240 Power supply
X 1471 Relay unit
1+... 476 Video distributor-amplifier
1+X PA ** Door release button (optional)
1+X SE ** Electric door lock (12Vac-1A)
... Refers to number of users.
X Refers to number of secondary door stations.
(
1
) Or MA61÷MA63.
* The rain shelter is used in the place of the back box and hood cover.
** Articles not supplied by ACI Farfisa.
Working instructions.
As the basic system described on page 218, with the following variations:
- The audio-video functions and door lock opening are automatically switched to
the door station which has made the call (or control switching ON) and remain
in this state until a call from another entrance is received.
- Services to secondary door stations are independent and can be operated at
the same time.
- By making the call from the secondary audio station, the video intercom
remains switched OFF.
Notes
- For audio compatibility we do not suggest to connect door stations MODY
series with internal devices ECHOS series.
- If the control switching ON is necessary, connect terminal 4 of the timer (dashed
wire).
- DV.. distributors can be used instead of the video distributors 476 by adding
a power supply wire (from + to terminal 8 of every video intercom).
- For the connection of name plate lamps read notes 6, 7 and 8 of the installation
instructions on page 146.
- For wires dimensioning and video connection refer to the installation instruc-
tions and table on pages 146÷148.
1473
3137a
8b 9b 10b 7b
PA
SE
230V
127V
0
I
PRS240
1471
MD71
MD100
C+
6
5
1
3
2
1
X
8a
9a
2
1
6
54
7128 910
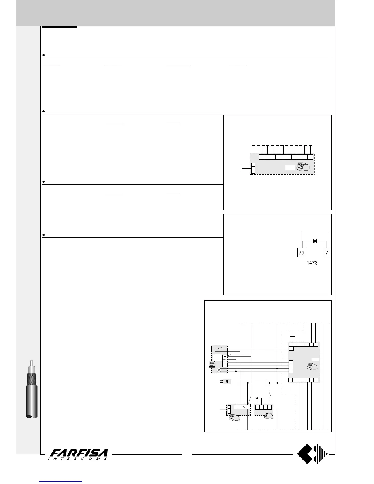
Connection of the MD100 amplified external door sta-
tion to the secondary door station instead of electric
door speaker MD30 and module MD11.
Connection of two door locks, of which the
secondary is always activable, in a system with
multiple entrance
For this option it is necessary to
install a diode (100V-1A; type
1N4007) between terminals 7
(cathode) and 7a (anode) of every
secondary exchanger. The diode
allows to activate also the door
look of your own entrance when the door look of the
main entrance is activated. On the contrary when the
door lock of your own entrance is activated the door
look of the main entrance is not activated.
Connection of 1281E power supply-timer in-
stead of 1281 plus 1282E.
By adding 1281E to the schematics on page 213
instead of 1281 plus 1282E, the system working will
modify as follows:
- switching-OFF at the end of the timing only.
Power supply-timer of the main entrance
230V
127V
0
1281E
F
SH3+ X 5
C+
4

Table of Contents

Related product manuals