EasyManua.ls Logo

FBD 373 - Page 51

FBD 373
64 pages
Print Icon
To Next Page IconTo Next Page
To Next Page IconTo Next Page
To Previous Page IconTo Previous Page
To Previous Page IconTo Previous Page
Loading...
37X INSTALLATION & OPERATION MANUAL
372/373 MODELS
49
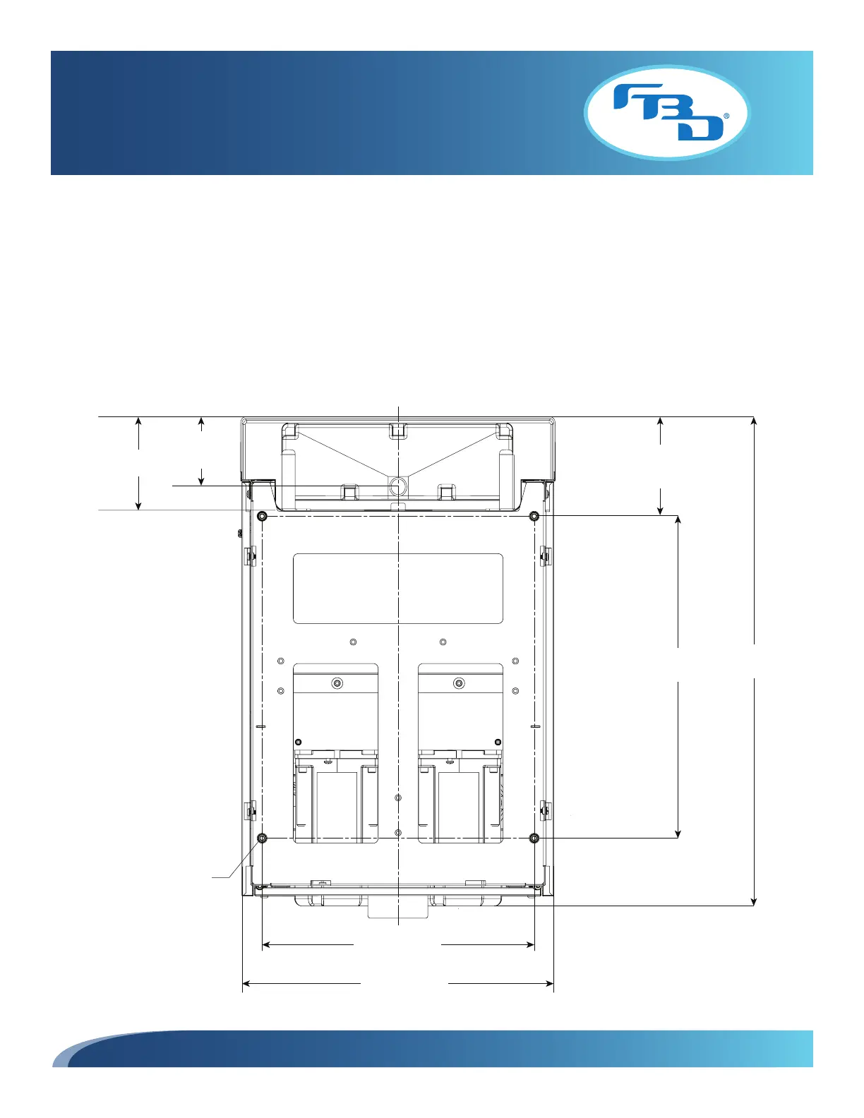
11. DIAGRAMS AND SCHEMATICS
11.1 Mounting Templates
To permanently secure the dispenser to a countertop, use the provided mounting diagrams (Figures 11.1 and 11.2) to
drill mounting holes into the countertop. Next, place the dispenser in position and install bolts from the underside of the
countertop into the threaded bosses in the frame. Seal the dispenser to the countertop with a bead of clear silicone caulk
around the base of the frame to prevent spills from collecting under the dispenser.
16.13 in.
[409.58 mm]
25.87 in.
[657.1 mm]
13.63 in.
[346.08 mm]
15.62 in.
[396.80 mm]
(4) TAPPED
MOUNTING HOLES
5.80 in.
[147.3 mm]
6.04 in.
[153.4 mm]
DRIP TRAY
FRONT
4.36 in.
[110.7 mm]
DRAIN
Figure 11.1 Mounting Diagram for 372 Dispenser

Table of Contents

Related product manuals