EasyManua.ls Logo

Fire-Lite 411UD - Installation; Mounting Options; Operating Power; Input Channels

Fire-Lite 411UD
68 pages
Print Icon
To Next Page IconTo Next Page
To Next Page IconTo Next Page
To Previous Page IconTo Previous Page
To Previous Page IconTo Previous Page
Loading...
411UD Document #50759 Rev. E 12/09/2008 P/N 50759:E 15
Installation
CHAPTER 2 Installation
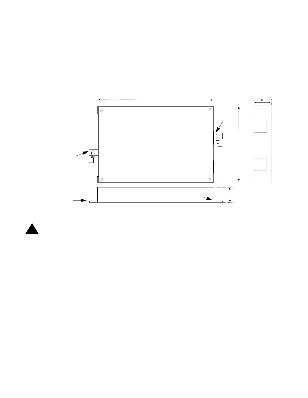
2.1 Mounting Options
The 411UD with enclosure may be mounted in the cabinet of the Fire•Lite/Notifier control panel which is being mon-
itored or in any enclosure UL listed for fire protective use. When using with other than Fire•Lite/Notifier control
panels, the 411UD may be mounted in any enclosure UL listed for fire protective use. Mounting tabs are provided
for ease of mounting.
2.2 Operating Power
CAUTION: Disconnect all power before servicing the 411UD. The digital communicator may be damaged by
removing and/or inserting components or interconnecting cables while the unit is energized.
12VDC or 24VDC nominal power connections are made to TB1 on the 411UD circuit board. When jumper J4 is
installed, the 11.2 to 12.4 VDC nominal operating voltage (UL tested range: -15%, +10%) for the digital communica-
tor must be power-limited, filtered, nonresettable. This 12 VDC nominal operating power can be supplied directly to
the 411UD by a UL listed 12 VDC power supply listed for fire protection or by a nonresettable 12 VDC output from
a control panel. Alternatively, removing J4 Jumper on the digital communicator circuit board allows the 411UD to be
supplied by a power-limited, nonresettable 21.3 to 24.0 VDC (UL tested range: -15%, +10%). This 24 VDC nominal
operating power can be supplied by a UL listed 24 VDC power supply, which, in order to comply with UL 864 must
be listed for Fire Protective Signaling Systems or by a nonresettable 24 VDC output from a control panel. This nom-
inal 24 VDC power is then internally regulated by the digital communicator to 12 VDC operating power.
Note that upon power-up, the 411UD will immediately annunciate a DACT trouble since the communicator is factory
defaulted to 'communicator disabled' at program location 64.
2.3 Input Channels
The 411UD digital communicator has four channel inputs. Each channel is supervised for opens (trouble) and shorts
(alarm) by the digital communicator. Each channel is a Style B (Class B) Initiating Device Circuit designed to accept
any normally-open contact device. Since channels do not latch, a reset switch is not provided by the 411UD. The
communicator transmissions to a central station track the state of the inputs. Refer to Figure 2-3, “Style B Channel
Connections,” on page 17 for information on wiring Style B circuits.
1.000“ (2.54 cm)
6.841“ (17.376 cm)
1.000“
(2.54 cm)
4.595“
(11.671 cm)
0.187“
(0.475 cm)
0.187“
(0.475 cm)
FIGURE 2-1:411UD Enclosure
Mounting bracket
Mounting
bracket
Mounting bracket
Mounting bracket
Bottom
411bkbox.cdr
!

Table of Contents

Related product manuals