EasyManua.ls Logo

FireClass Prescient III - Connection Diagrams; 12.1 Zone Circuit Connection Diagram

Default Icon
43 pages
Print Icon
To Next Page IconTo Next Page
To Next Page IconTo Next Page
To Previous Page IconTo Previous Page
To Previous Page IconTo Previous Page
Loading...
EQUIPMENT: FIRECLASS Prescient III WRITTEN BY: RKP
PUBLICATION: OMFCPRES3IN CHECKED BY: AP
ISSUE No. & DATE: 0 02/02/12
PAGE 37 of 43
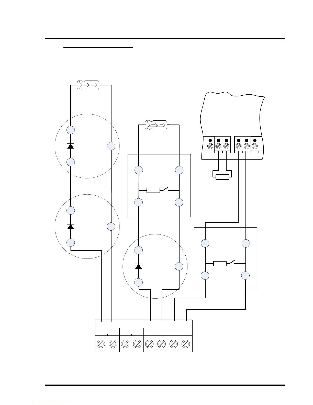
12. Connection Diagrams
12.1 Zone Circuit Connection Diagram
ZONE CIRCUITS
+
-
+
-
+
-
+
-
1 2 3
4
End-Of-Line
Capacitor
22uF 35V
+ IN
+ OUT
- COM
+ IN
+ OUT
- COM
Detector Bases
with optional
Schottky Diode
Zone 2 wired
identically to
Zone 1
End-Of-Line
Capacitor
22uF 35V
+ IN
+ OUT
- COM
Detector Base
with optional
Schottky Diode
+ IN
+ OUT
+ IN
+ OUT
Manual Call
Point with 680R
0.5W resistor
10K ¼ W
End-Of-Line
resistor
DOOR LOCK IN-
MAN REL IN+
MAN REL IN-
MAN REL OUT+
MAN REL OUT-
ABORT IN+
+ IN
+ OUT
+ IN
+ OUT
Manual
Release Call
Point with 680R
½ W resistor
Connection to
Manual Release
switch on SLU
Panel Terminals

Table of Contents

Other manuals for FireClass Prescient III

Related product manuals