EasyManua.ls Logo

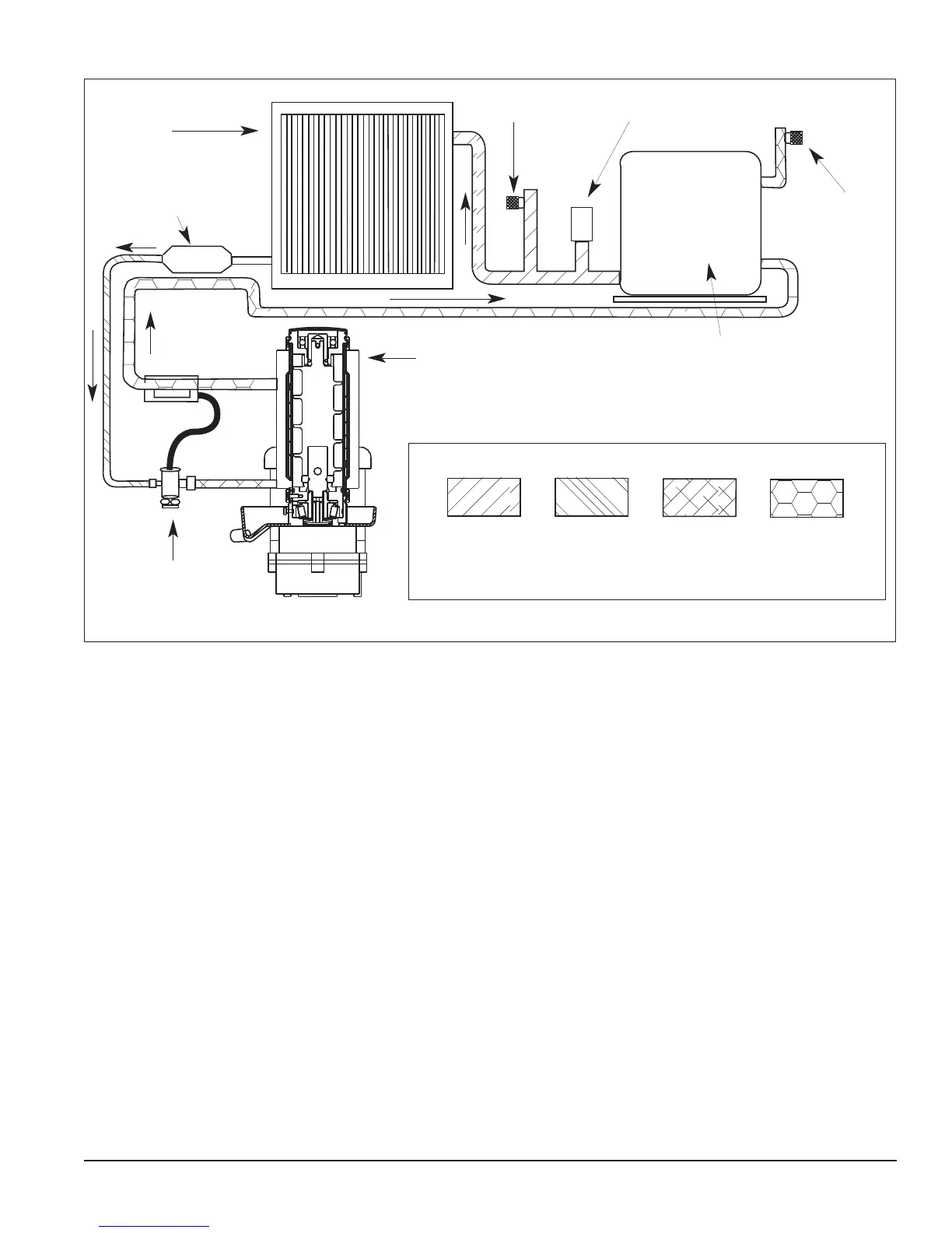
Follett 50CI400A - Refrigeration System Information; Refrigeration Cycle Diagram

Follett 50CI400A
48 pages
Print Icon
To Next Page IconTo Next Page
To Next Page IconTo Next Page
To Previous Page IconTo Previous Page
To Previous Page IconTo Previous Page
Loading...
25CI400A/W • 25HI400A • 50CI400A/W • 50HI400A 29
Refrigeration cycle
condenser
filter dryer
thermostatic
expansion
valve
evaporator
high side
service port
low side
service port
high pressure
switch
compressor
high
pressure
vapor
low
pressure
vapor
high
pressure
liquid
low
pressure
liquid

Table of Contents

Related product manuals