EasyManua.ls Logo

ForestAir E-Tech Series - 3.0 APPLICATIONS; Vertical Installation Configurations

ForestAir E-Tech Series
28 pages
Print Icon
To Next Page IconTo Next Page
To Next Page IconTo Next Page
To Previous Page IconTo Previous Page
To Previous Page IconTo Previous Page
Loading...
6
© Copyright, Sunrise Tradex Corp., 2018
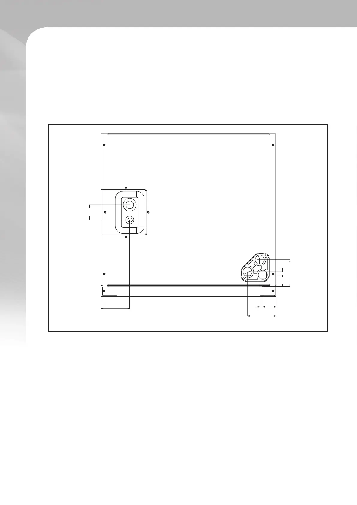
FIG. 2 DIMENSIONS FOR FRONT CONNECTION COIL
3.0 APPLICATIONS
3.1 VERTICAL UPFLOW
Vertical upow conguration is the factory set on all models (see g. 1).
If return air is to be ducted, install duct ush with oor. Use reproof gaskets of 3.2 to 6.4 mm
(⅛ to ¼ inches) thick between the ducts, unit and oor. Set unit on the oor over the opening.
IMPORTANT : Torque applied to drain connections should not exceed 15 ft-lb (see g.1 and 2).
3.2 VERTICAL DOWNFLOW
Conversion from Vertical Upow to Vertical Downow : A vertical upow unit may be
converted to vertical downow. Remove the door and indoor coil and reinstall 180° from original
position (see g. 3).
IMPORTANT : To comply with certication agencies and the National Electric Code for
horizontal right application, the circuit breaker(s) on eld-installed electric heater kits must be
re-installed following the procedure below so that the breaker switch “ON” position and marking
is up, and “OFF” position and marking is down.
To rotate breaker(s): Rotate one breaker set (circuit) at a time starting with the one on the
right. Loosen both lugs on the load side of the breaker. (Make sure that wires are identied
and are reinstalled into proper breaker). Wires are bundled with wire ties, one bundle going to
the right lug and one bundle going to the left lug.
Installation Manual
14.2 mm
(1 9/16")
74.6 mm
(2 15/16")
74.6 mm
(2 15/16")
71.4 mm
(2 13/16")
7.9 mm
(5/16")
7.9 mm
(5/16")
31.8 mm
(1 1/4")
34.9 mm
(1 3/8")

Related product manuals