EasyManua.ls Logo

Franke FBD6200BX - Electrical Schematic Diagram

Franke FBD6200BX
28 pages
Print Icon
To Next Page IconTo Next Page
To Next Page IconTo Next Page
To Previous Page IconTo Previous Page
To Previous Page IconTo Previous Page
Loading...
25
EN
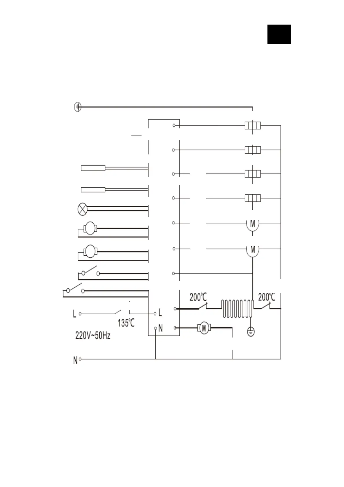
XII. Electrical schematic diagram
The items are subject to change without prior notice
Yellow-green
Display panel
Cavity sensor
Steam generator sensor
LED light
Inlet solenoid valve
Outlet solenoid valve
Tank switch
Tank ejection and reset switches
Red
Black
Main program power board
Brown
Blue
White
Black
Blue
Red
Yellow-green
Tank motor
Back heating tube
Top heating tube (external)
Top heating tube (internal)
Bottom heating
tube
Cooling fan
Circulation fan
Steam generator

Related product manuals