EasyManua.ls Logo

Fronius TransPuls Synergic 3200 - LED Checklist; Measuring Points

Fronius TransPuls Synergic 3200
140 pages
To Next Page IconTo Next Page
To Next Page IconTo Next Page
To Previous Page IconTo Previous Page
To Previous Page IconTo Previous Page
Loading...
50
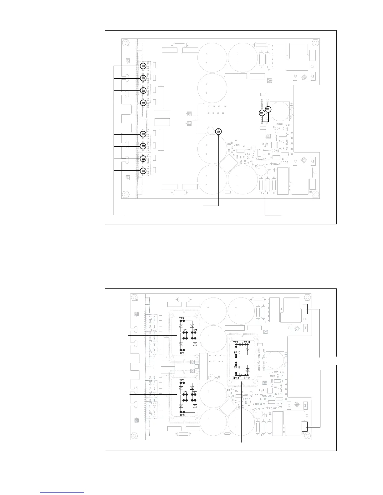
8 transistor module control LEDs
LED checklist
Fig. 16 LED indicators on PC board BPS 25/BPT 27
1 x 15 V primary supply LED
2 control LEDs
Boost converter
Measuring points In every transistor module there are 4 MOS-FETs (metal oxide semiconductor field
effect transistors) with diode. This diode provides information about the state of the
transistor:
using a diode tester, a diffusion potential of 0.4 - 0.5 V must be measured. If this voltage
cannot be measured, the module is faulty.
Fig. 17 Measuring points on the BPS 25/BPT 27 PC board
4 x diode
(module M1)
4 x diode (module M3)
4 x diode
module M2
Charging resistor (PTC)
120 R at 25°C

Table of Contents

Other manuals for Fronius TransPuls Synergic 3200

Related product manuals