EasyManua.ls Logo

Frymaster 21814GF - Wiring Diagrams and Schematics

Frymaster 21814GF
52 pages
Print Icon
To Next Page IconTo Next Page
To Next Page IconTo Next Page
To Previous Page IconTo Previous Page
To Previous Page IconTo Previous Page
Loading...
Frymaster 1814 Series Gas Fryers
Chapter 7: Troubleshooting
7-4
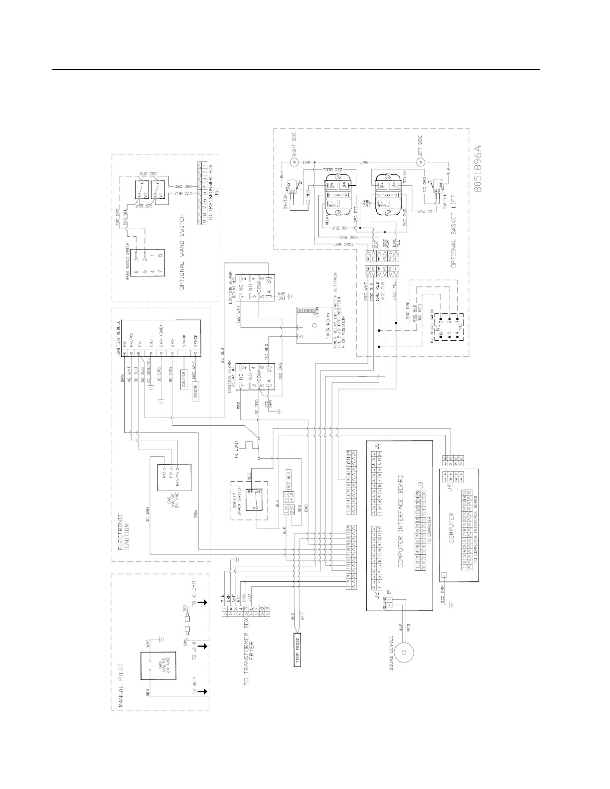
7.4 Wiring Diagrams,
7.4.1 Main Wiring Diagram

Related product manuals