EasyManua.ls Logo

Fujitsu AOU12RLFC - Models: AOU42 RGLX and AOU48 RGLX

Fujitsu AOU12RLFC
151 pages
Print Icon
To Next Page IconTo Next Page
To Next Page IconTo Next Page
To Previous Page IconTo Previous Page
To Previous Page IconTo Previous Page
Loading...
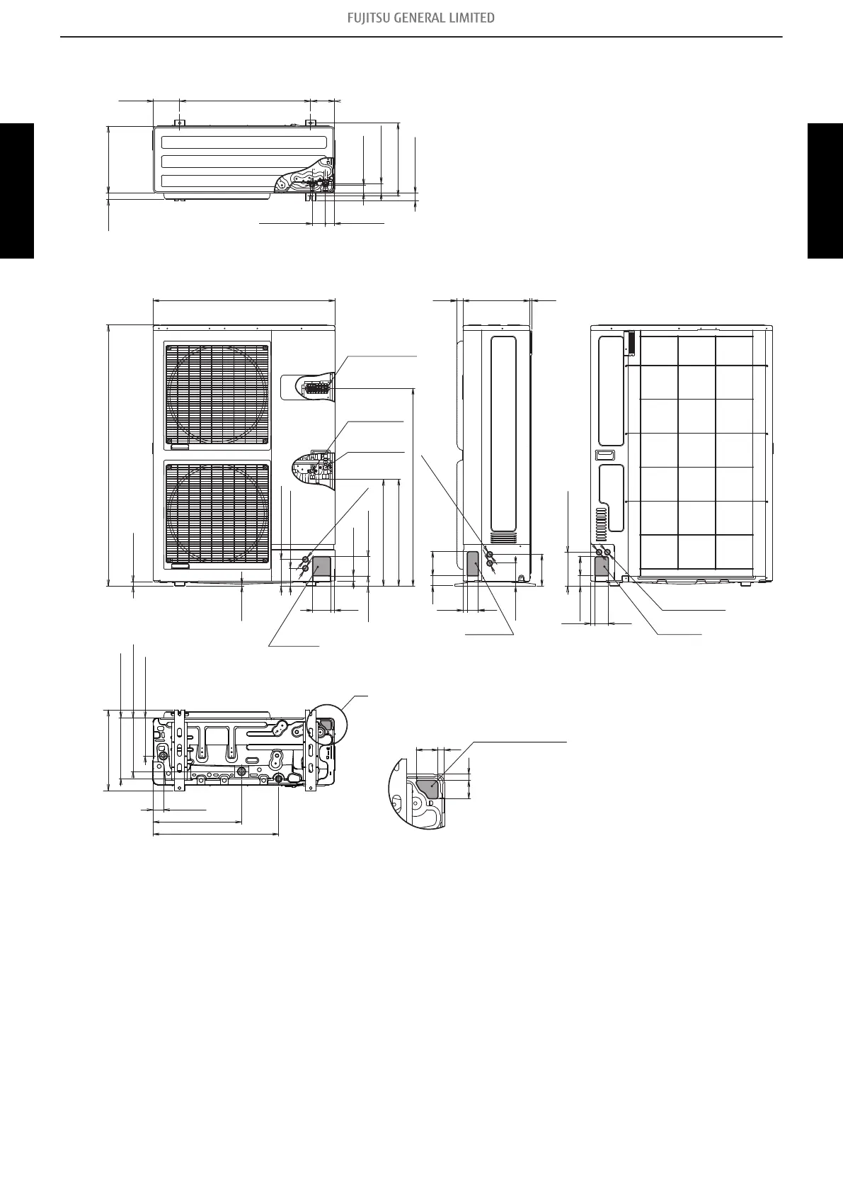
2-3. Models: AOU42RGLX and AOU48RGLX
13 (330)
1-1/4
(31)
25-9/16 (650)
4-11/16
(119)
5-3/16
(132)
14-9/16 (
370
)
1-1/2 (38)
(Liquid)
1-3/4 (45)
2-5/8 (66)
1-13/16 (46)
(
Gas
)
50-13/16 (1290)
35-7/16 (900)
13/16 (21)
3/8 (9)
3-1/2
(89)
13/16
(21)
13/16
(21)
13/16
(21)
3-3/4 (95)
1 (25)
1-15/16
(50)
1-15/16
(50)
1-15/16
(50)
21-3/8 (543)
(
Gas valve
)
21-1/4 (540)
(Liquid valve)
39-1/16 (992)
13 (330)
1-1/4
(31)
1/2
(12)
2-3/16
(55)
4-3/4
(120)
3-3/4
(95)
6-9/16 (167)
6-1/8
(156)
4-7/16
(112)
2-5/8
(67)
7-3/8 (188)
10-7/16 (265)
11-7/8 (302)
15-3/4 (400)
2 (51.5)
17-5/16 (440)
24-5/8 (625)
Ø28 (Ø1-1/8)
x 2
(Cable port)
Ø28
(Ø1-1/8) x 2
(Cable port)
Ø28 (Ø1-1/8) x 2
(Cable port)
Pipe port
Pipe port
Pipe port
Top view
Front view
Bottom view
Side view
Detail A
Rear view
1-9/16 (40)
3-way valve
(
Gas
)
3-way valve
(Liquid)
Terminal blocks
9/16
(14)
13/16
(46)
5/8
(16)
2-1/8
(54)
3-7/16 (87)
5-3/16 (131)
Pipe and cable port
Unit: in (mm)
A
- 103 -
2-3. Models: AOU42RGLX and AOU48RGLX 2. Dimensions
OUTDOOR UNIT
AOU12-48R
OUTDOOR UNIT
AOU12-48R

Table of Contents

Other manuals for Fujitsu AOU12RLFC

Related product manuals