EasyManua.ls Logo

Fujitsu ARGA18FMTA - Page 126

Fujitsu ARGA18FMTA
128 pages
Print Icon
To Next Page IconTo Next Page
To Next Page IconTo Next Page
To Previous Page IconTo Previous Page
To Previous Page IconTo Previous Page
Loading...
- 71 -
OUTDOOR UNIT
AOGA30-60F
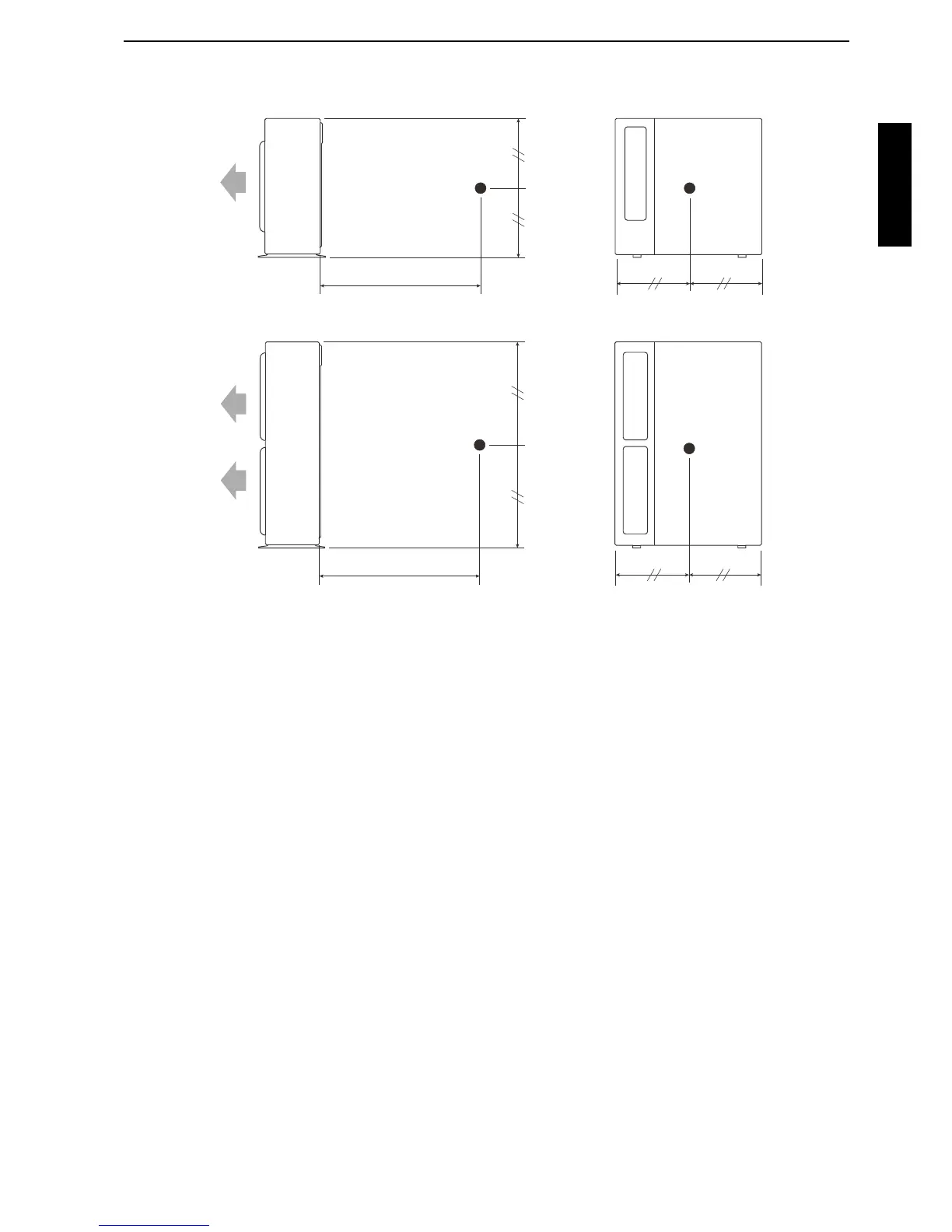
8-2. Sound level check point
NOTE: Detailed shape of the actual outdoor unit might be slightly different from the one illustrated
above.
1 m
Center
MicrophoneMicrophone
Rear
Center
Airflow
Rear viewSide view
1 m
Airflow
Center
MicrophoneMicrophone
Rear
Rear viewSide view
Center