EasyManua.ls Logo

Fujitsu MAP3147 - Data Space Configuration

Fujitsu MAP3147
290 pages
Print Icon
To Next Page IconTo Next Page
To Next Page IconTo Next Page
To Previous Page IconTo Previous Page
To Previous Page IconTo Previous Page
Loading...
1.8 Data Block Addressing
C141-E167 1 - 31
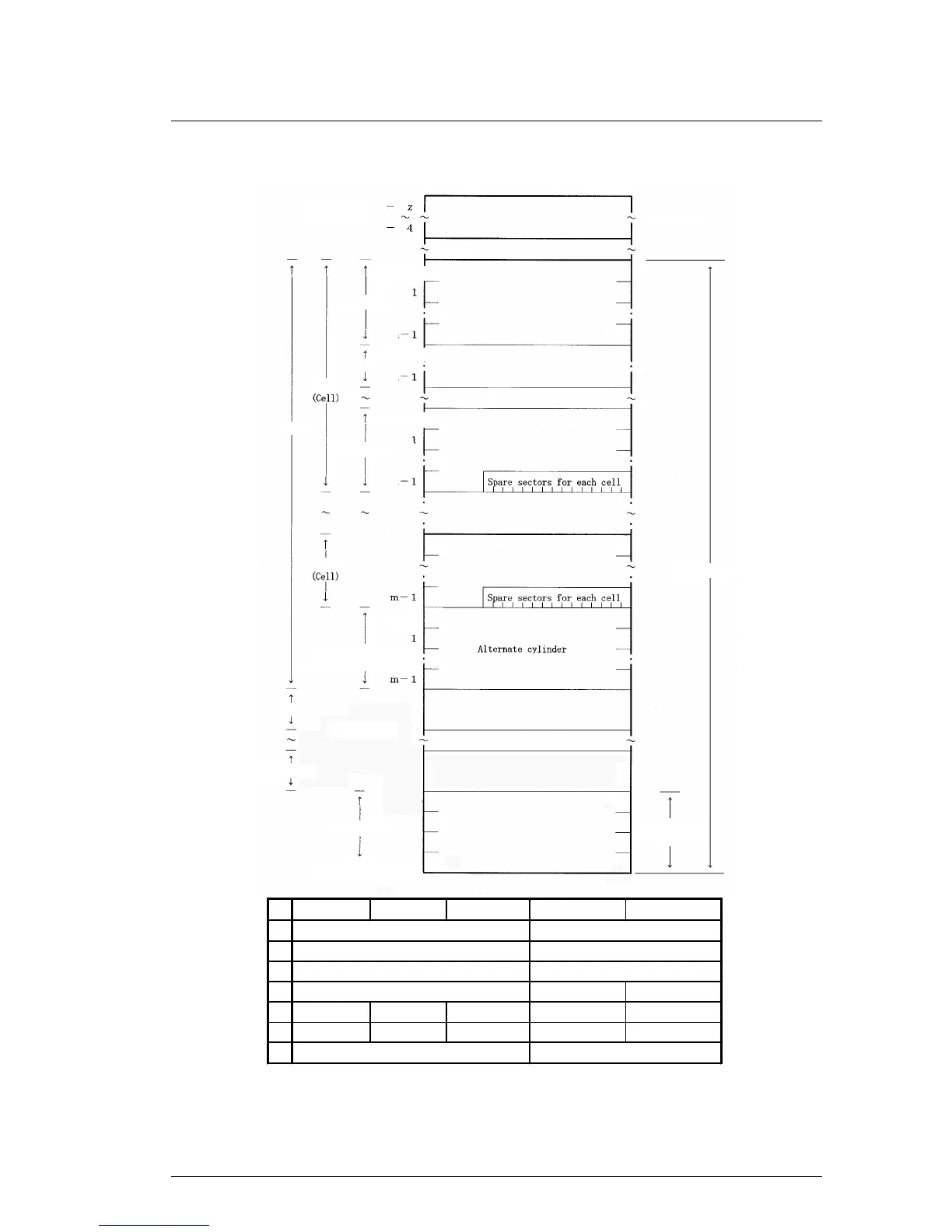
MAP3147 MAP3735 MAP3367 MAS3367 MAS3735
z73 TBD
a14 TBD
b1 TBD
c 1044 TBD TBD
d 48970 49040 49166 TBD TBD
m8 4 2 TBD TBD
x18 TBD
Physical cylinder
Zone 0
Zone (x-1)
Zone 1
Cell 0
Cell 1
Track 0
Track (m-1)
Track 1
Cylinder (a-1)
Cylinder 0
Cylinder 0
C
y
linder 0
Track 0
Alternate cylinder (b-1)
(b cylinders)
(c cylinders)
Last cylinder (d-1)
(Last cylinder)
Alternate
cylinder
[User space]
[System space]
a
a
a
Figure 1.5 Data space configuration

Table of Contents

Related product manuals