EasyManua.ls Logo

FULTON 60J - Page 10

FULTON 60J
88 pages
Print Icon
To Next Page IconTo Next Page
To Next Page IconTo Next Page
To Previous Page IconTo Previous Page
To Previous Page IconTo Previous Page
Loading...
J OIL-E-08 2008
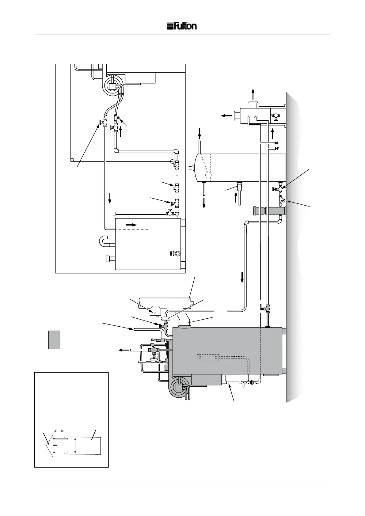
FIG. 3 TYPICAL INSTALLATION
5
STANDARD BOILER
TRIM SUPPLIED
WHEN ORDERING
THE BOILER
STEAM SUPPL Y
PIPE SAFETY VA LVE
TO SAFE AREA, FITTING
UNIONS AND DRAIN
DRAUGHT
STABILISER
(WHERE
FITTED)
WA TER
COLUM N
BLOWDOWN
LINE
BOILER BLOWDOWN
VA LVE
CLEANOU T
DOOR
FEED WA TER
CHECK VA LVE
FLUE
SPIGOT
CONDENS ATE RETURN
FLEXIBLE LINK
OVERFLOW
MAKE-U P SUPPL Y
FEED WA TER
PUMP
NOTE: A BREAK TANK MA Y
BE REQUIRED CHECK TH E
LOCA L WA TER AUTHORITY
BYE-LAW S
OVERFLOW
TO DRAIN
DRAIN
STAINLESS
STEEL
TANK
SET
ISOLATING
VA LVE
STRAINER
FU LTON
BLOWDOWN
SEP ARA TO R
CONNECTIONS TO OIL STORAGE T ANK
OIL FEED
LINE
OIL FILTER
(METAL CART RIDGE)
FIT AN ISOLATING VA LVE IN
OIL RETURN LINE ONLY
IF OIL TANK OR PIPE WORK
IS ABOVE BURNER LEVEL
VEN T
FILL
OIL RETURN LINE
SIGHT GLASS
ISOLATING
VA LVE
CHECK
VA LVE
SLUDG E
COCK
BALL
VA LVE
FIRE VA LVE LINE
Cowl
Flue
D = Diameter of flue
H = 1.5 X D
H
D
2
2

Related product manuals