EasyManua.ls Logo

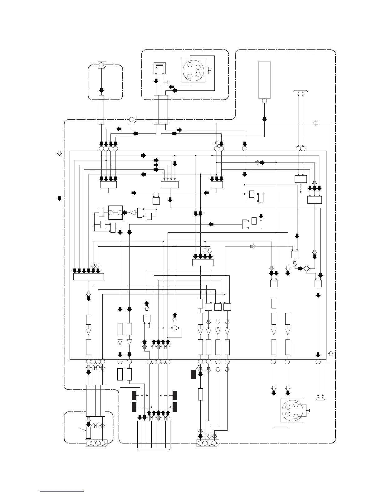
FUNAI HDR-A2835D - Video Selector Block Diagram

FUNAI HDR-A2835D
94 pages
Print Icon
To Next Page IconTo Next Page
To Next Page IconTo Next Page
To Previous Page IconTo Previous Page
To Previous Page IconTo Previous Page
Loading...
1-12-4
Video Selector Block Diagram
TO DIGITAL
SIGNAL
PROCESS
BLOCK
DIAGRAM
(CN601)
TO VIDEO
BLOCK
DIAGRAM
TO SUB SYSTEM
CONTROL
BLOCK DIAGRAM
(VIDEO SELECTOR)IC1506
TU1501
(TUNER UNIT)
17
VIDEO OUT
CN1504
21
VIDEO-Y/CVBS-IN
23 VIDEO-C-IN
7
VIDEO-Y(I/P)-OUT
3
VIDEO-Cr/Pr-OUT
5
VIDEO-Cb/Pb-OUT
1
VIDEO-Y(I)-OUT
9
VIDEO-C-OUT
Y
JK1505
(REAR)
S-VIDEO
OUT
VCR-VIDEO-IN
VCR-VIDEO-OUT
21
3
4
CY
IC3001
(FRONT)
S-VIDEO
IN1
3 4
21
C
VIDEO
-IN1
JK3001
(FRONT)
DRIVER
VIDEO OUT2
VIDEO-G
VIDEO-B
VIDEO-R
19
CN2001 CN1507
VIDEO-OUT2
8
8
REAR JACK
CBA
REAR JACK
CBA
FRONT JACK CBA
JK2001
CN1507 CN2001
VIDEO-IN2
10
10
CN1503 CN3001
VIDEO-IN1
16
16
S-VIDEO-Y-IN-F
S-VIDEO-Y-IN-F
14
14
12
12
VIDEO
IN2
20
JK2001
VIDEO IN1
20
JK1504
11
VIDEO-G-IN
13
13
7
VIDEO-B-IN
12
12
15
VIDEO OUT1
VIDEO-G
VIDEO-B
VIDEO-R
19
11
7
15
VIDEO-R-IN
14
14
JK1504
12
16
14
20
SW
SW
SW
SW
IIC
I/F
SW
SW
SW
GCL
SW
SW
AGC
AGC
LPF
100
7
9
22
48
50
49
30
61
59
51
52
53
55
57
46
44
45
DRIVER
DRIVER
DRIVER
DRIVER FBC
MUTE FBC
MUTE
MUTE
MUTE
MUTE
SW
DRIVER FBC
DRIVER
36
34
+
65
64
SW
SW
LPF
Q1514
Q2001
BUFFER
BUFFER
Q1512
BUFFER
Q1601
BUFFER
SW
REC VIDEO SIGNAL PB VIDEO SIGNAL
SDA
SCL
42
43
AV CBA
WF8
WF7WF5
WF6
WF4
SW
SW
+
24
SW
SW
SW
S-VIDEO-C-IN-F
E434GBLVS

Table of Contents

Related product manuals