EasyManua.ls Logo

FUNAI LC5-D32BB - Power Supply Circuit; Power Supply Block Diagram

FUNAI LC5-D32BB
74 pages
Print Icon
To Next Page IconTo Next Page
To Next Page IconTo Next Page
To Previous Page IconTo Previous Page
To Previous Page IconTo Previous Page
Loading...
7-7
A73F0BLP
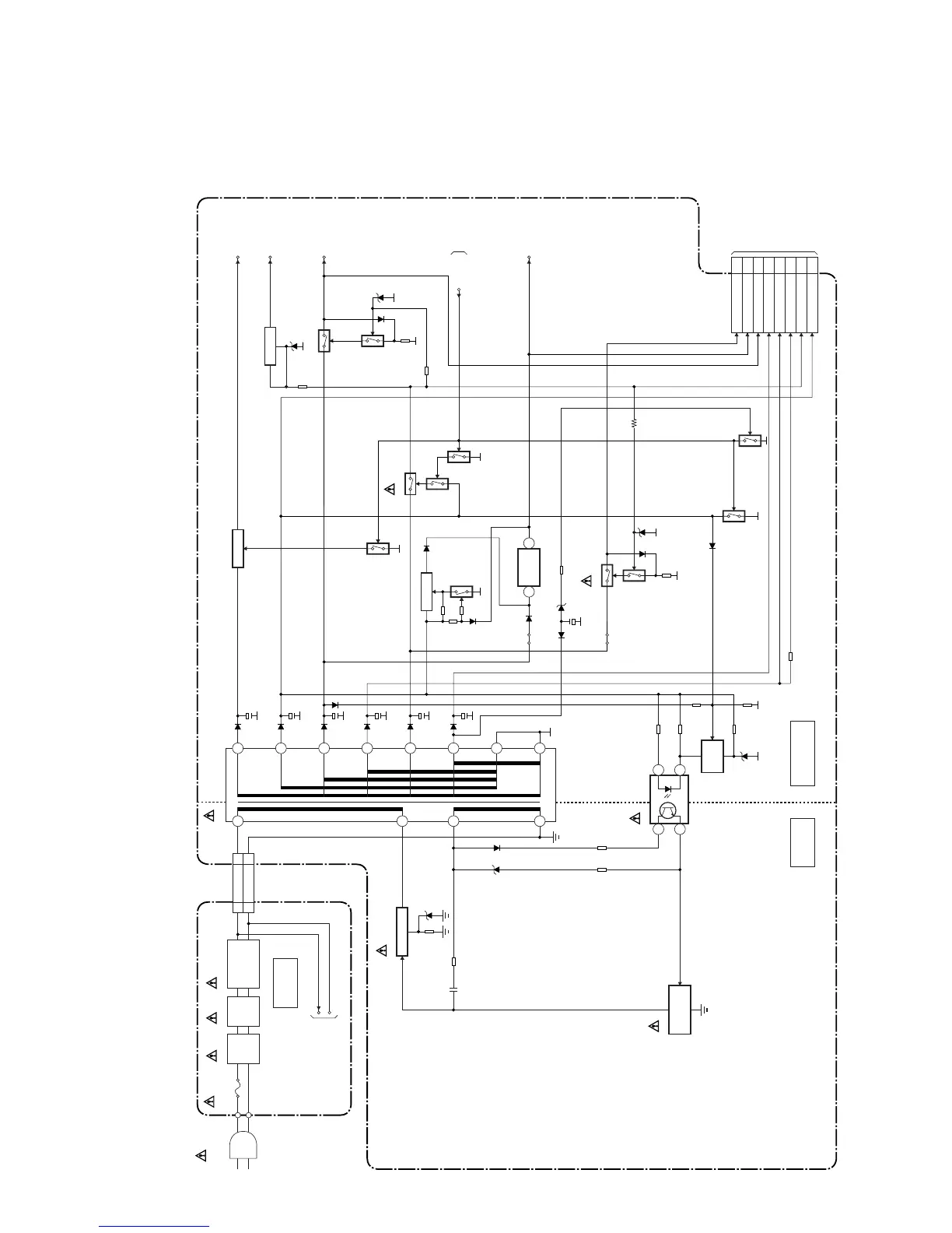
Power Supply Block Diagram
HOT
HOT
COLD
POWER SUPPLY CBA
INVERTER CBA
HOT CIRCUIT. BE CAREFUL.
TO DIGITAL
MAIN CBA UNIT
(CN4501)
Q602
SWITCHING
CONTROL
14
3 2
IC603
IC637
T601
CN601
TO INVERTER
BLOCK DIAGRAM
CN501
4
+3.3V
REG.
HOT-GND 2
ACL 1
2
1
P-ON+5V 6,7
+2.5V 14
+4V
10-12
+15V 18
+2.5V 16
AL+3.3V 4
+5V/+12V-LCD 2,3
+32V 20
F501
T4A H 250V
LINE
FILTER
L503
AC501
AC CORD
LINE
FILTER
L502
BRIDGE
RECTIFIER
ACL
HOT-GND
D502 - D505
2
16
15
10
14
9
13
12
11
7
6
SHUNT
REG.
Q601
SWITCHING
Q801
AMP+13V
P-ON+9V
P-ON+5V
P-ON-H
TO SYSTEM
CONTROL
BLOCK
DIAGRAM
AL+3.3V
CN301
+9V REG.
Q639,Q640
Q641
Q638
Q637
Q644
JS632
Q635
Q633
Q636
SW +13V
Q632
Q631
Q643
23
JS612
Q650,Q651
Q652
SW +5V
Q630
NOTE:
The voltage for parts in hot circuit is measured using
hot GND as a common terminal.
CAUTION !
For continued protection against fire hazard,
replace only with the same type fuse.
CAUTION !
Fixed voltage (or Auto voltage selectable) power supply circuit is used in this unit.
If Main Fuse (F501) is blown , check to see that all components in the power supply
circuit are not defective before you connect the AC plug to the AC power supply.
Otherwise it may cause some components in the power supply circuit to fail.

Table of Contents

Other manuals for FUNAI LC5-D32BB

Related product manuals