EasyManua.ls Logo

Gardner Denver EAH99C - Electrical Wiring - Standard Units; Grounding

Gardner Denver EAH99C
76 pages
Print Icon
To Next Page IconTo Next Page
To Next Page IconTo Next Page
To Previous Page IconTo Previous Page
To Previous Page IconTo Previous Page
Loading...
13-9-663 Page 20
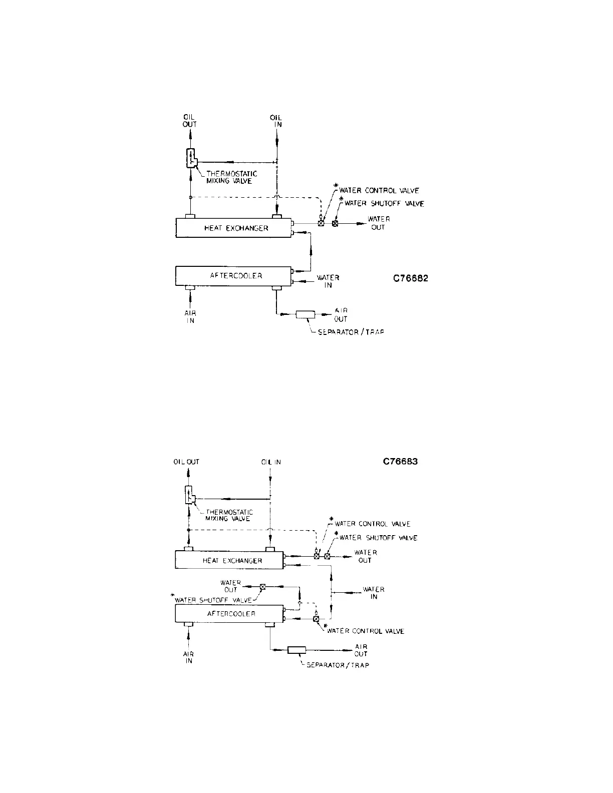
Most water systems will require control of impurities: filtration, softening or other treatment. See Section
5, “Compressor Oil Cooler - Water-Cooled Heat Exchanger” for more information on the water system.
* (Optional) Water Control Valve and Water Shutoff Valve Must Be Ordered Separately
Figure 2-7 – SERIES PIPING
SERIES PIPING (Figure 2-7) - Water flow must be through aftercooler first for effective cooling of
discharge air and is so piped on the standard water-cooled unit.
* (Optional) Water Control Valve and Water Shutoff Valve Must be Ordered Separately
Figure 2-8 – PARALLEL PIPING

Table of Contents

Related product manuals