EasyManua.ls Logo

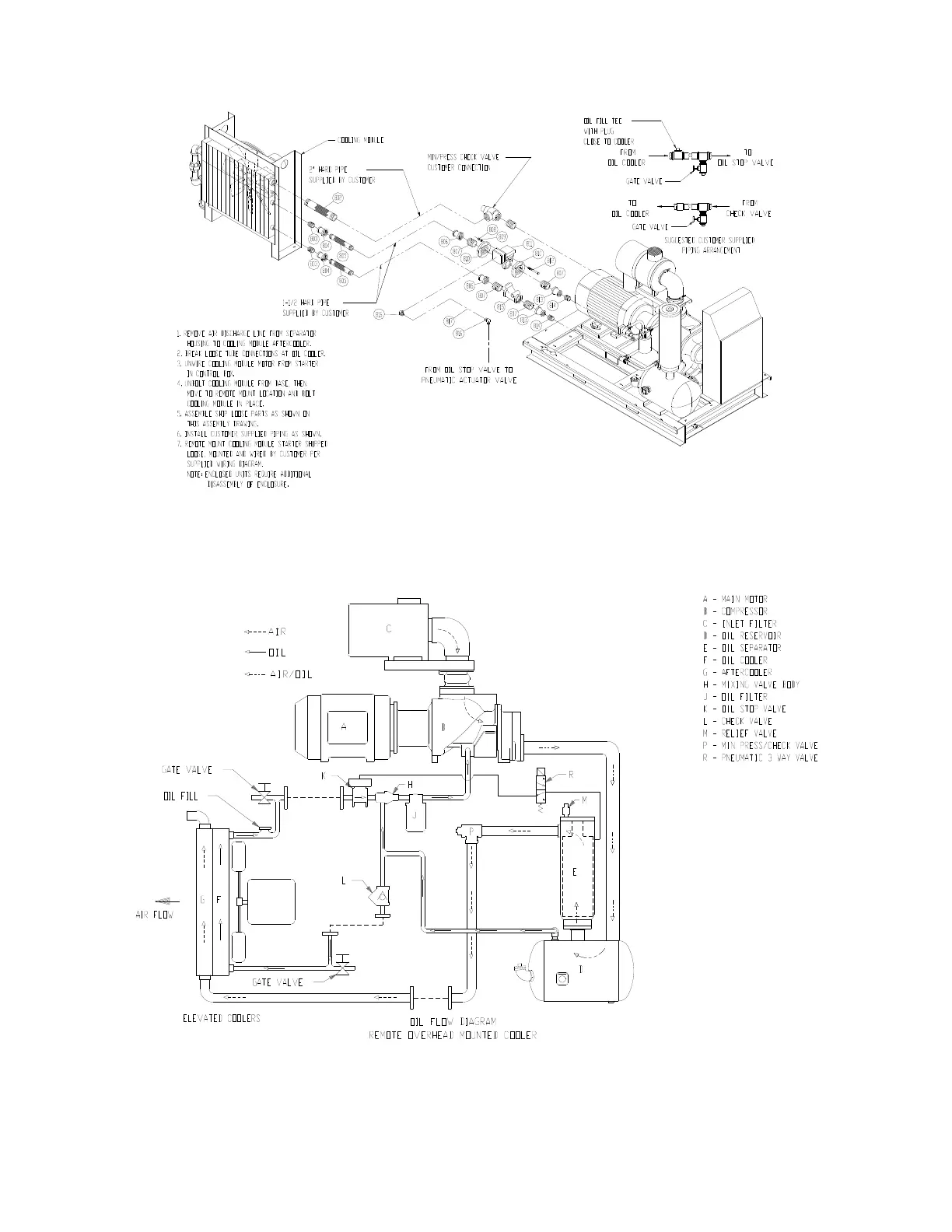
Gardner Denver EAH99C - Figure 5-4 - Oil Flow Diagram - Remote Overhead Mounted Cooler

Gardner Denver EAH99C
76 pages
Print Icon
To Next Page IconTo Next Page
To Next Page IconTo Next Page
To Previous Page IconTo Previous Page
To Previous Page IconTo Previous Page
Loading...
13-9-663 Page 48
Figure 5-4 – OIL FLOW DIAGRAM – REMOTE OVERHEAD MOUNTED COOLER
201EAP797-
A
(Ref. Drawing)
218ECM797-
A
(Ref. Drawing)

Table of Contents

Related product manuals