EasyManua.ls Logo

GE AF-650 GP

GE AF-650 GP
166 pages
To Next Page IconTo Next Page
To Next Page IconTo Next Page
To Previous Page IconTo Previous Page
To Previous Page IconTo Previous Page
Loading...
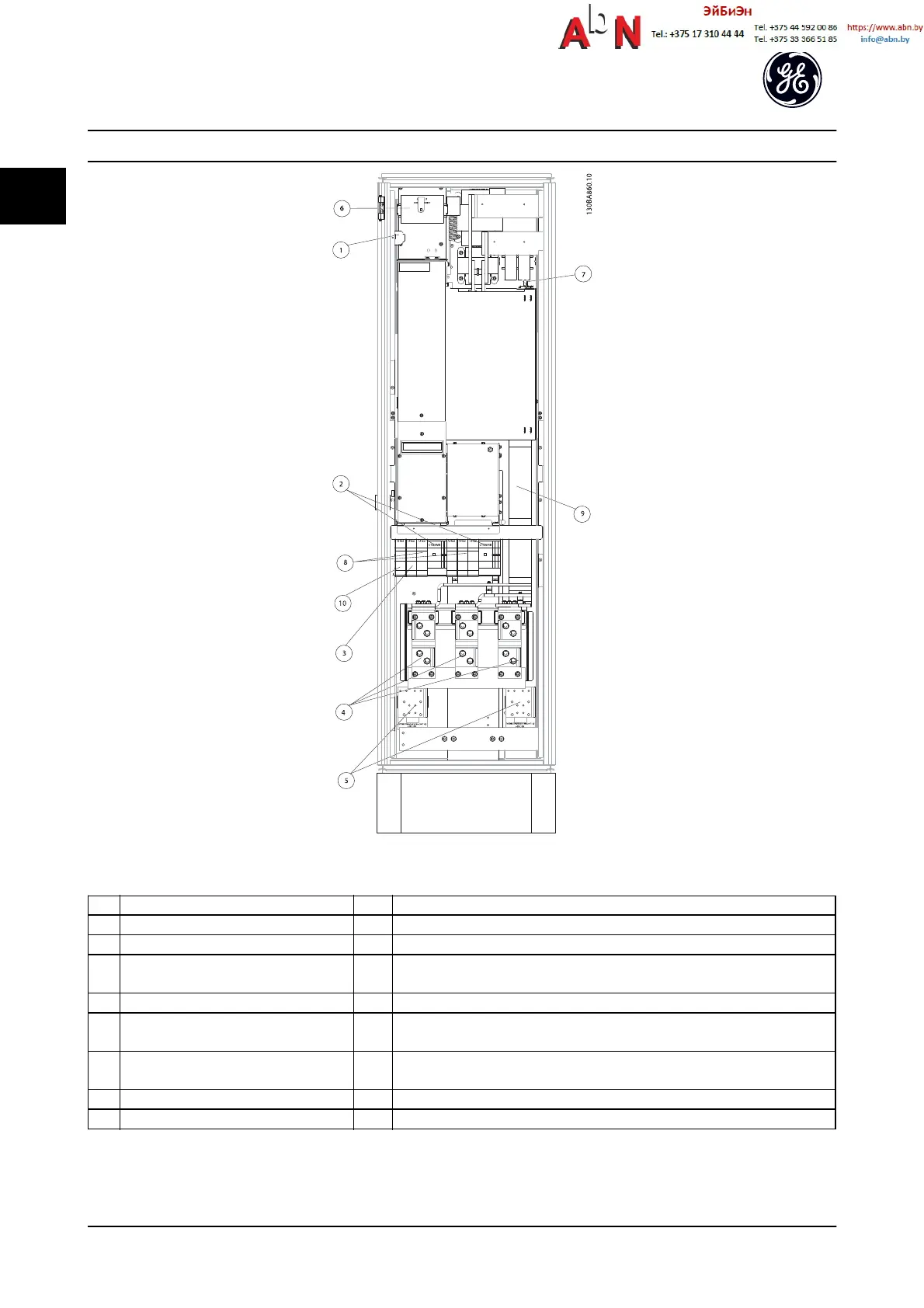
Figure 1.6 Rectifier Cabinet, unit sizes 61, 62, 63 and 64
1) 24 V DC, 5 A 5) Load sharing
T1 Output Taps -DC +DC
Temp Switch 88 89
106 104 105 6) Control Transformer Fuses (2 or 4 pieces). See 13.3 Fuse Specifications for part
numbers
2) Manual Motor Starters 7) SMPS Fuse. See 13.3 Fuse Specifications for part numbers
3) 30 A Fuse Protected Power Terminals 8) Manual Motor Controller fuses (3 or 6 pieces). See 13.3 Fuse Specifications for part
numbers
4) Line 9) Line Fuses, unit sizes 61 and 62 (3 pieces). See 13.3 Fuse Specifications for part
numbers
R S T 10) 30 Amp Fuse Protected Power fuses
L1 L2 L3
Table 1.5
Introduction
AF-650 GP
TM
Design and Installation Guide
1-6 DET-767A
1
1

Table of Contents

Other manuals for GE AF-650 GP

Related product manuals