EasyManua.ls Logo

GE ASTAT Plus - Page 40

GE ASTAT Plus
40 pages
Print Icon
To Previous Page IconTo Previous Page
To Previous Page IconTo Previous Page
Loading...
6-13
6-8. P.C.B. 's
1
14
3
2
0
C/V
ControlSupply
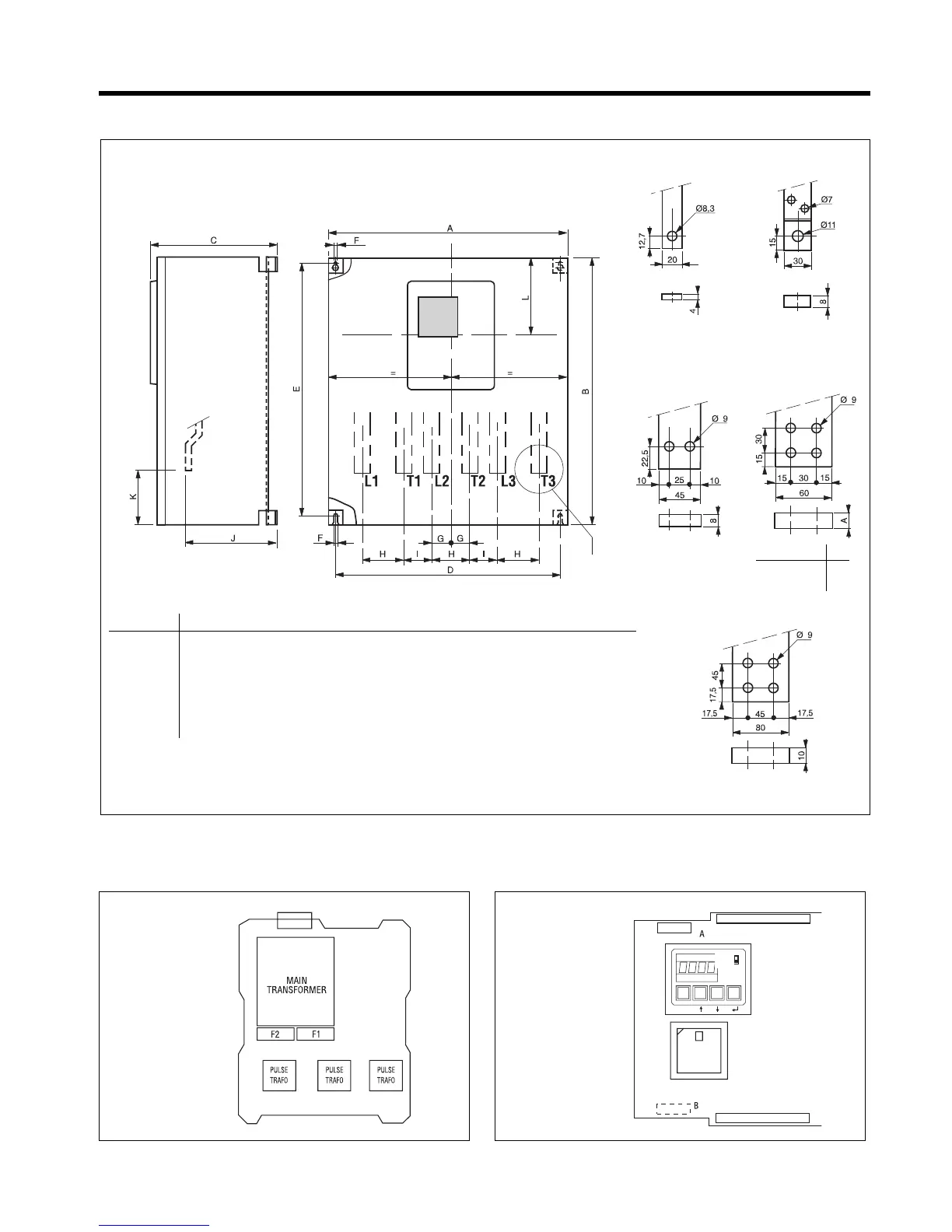
ABCDEFGHI JKL
QC_NDP 510 490 305 460 465 9 53 106 54 259 70 168
QC_QDP 510 490 305 460 465 9 53 106 54 259 70 168
QC_RDP 550 540 317 480 495 9 59 118 54 275 78 168
QC_SDP 550 540 317 480 495 9 59 118 54 275 78 168
QC_TDP 590 685 317 520 640 9 59 118 64,5 270 100 168
QC_UDP 790 850 402 700 805 11 60 120 120 352 120 175
QC_VDP 790 850 402 700 805 11 60 120 120 352 120 175
QC_XDP 810 1000 407 720 955 11 70 140 110 357 120 175
Terminal detail
Terminal
details
QC _ NDP
QC _ QDP
QC _ RDP
QC _ SDP
QC _ TDP A
QC _ UDP 6
QC _ VDP 10
QC _ XDP
6. Appendix
6-3. Dimensions

Table of Contents

Related product manuals