EasyManua.ls Logo

GE ASTAT Plus - Dimensions

GE ASTAT Plus
40 pages
Print Icon
To Next Page IconTo Next Page
To Next Page IconTo Next Page
To Previous Page IconTo Previous Page
To Previous Page IconTo Previous Page
Loading...
6. Appendix
6-12
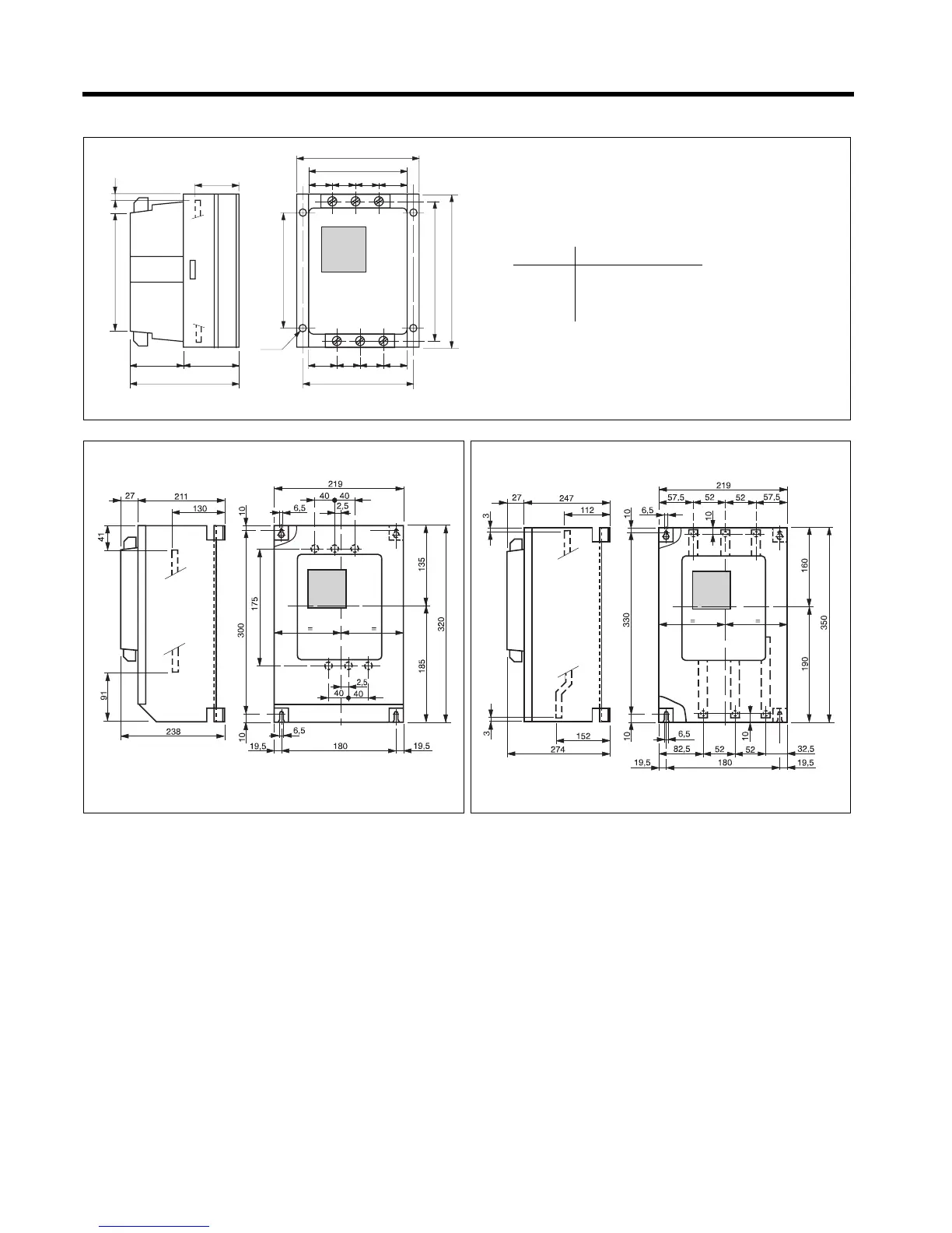
6-3. Dimensions
QC _ JDP , QC _ KDP QC _ LDP , QC _ MDP
ABC
QC_FDP 200 160 6
QC_GDP 200 160 6
QC_HDP 200 160 6
QC_IDP 250 200 31
170
140
27,5
40
40
32,5
32,5
40
40
27,5
155
Ø7
A
175
B
145
75
100
175
66
C

Table of Contents

Related product manuals