EasyManua.ls Logo

GE EST iO500 - Component Descriptions

GE EST iO500
284 pages
Print Icon
To Next Page IconTo Next Page
To Next Page IconTo Next Page
To Previous Page IconTo Previous Page
To Previous Page IconTo Previous Page
Loading...
Chapter 1: System operation
EST iO64 and iO500 Technical Reference Manual 13
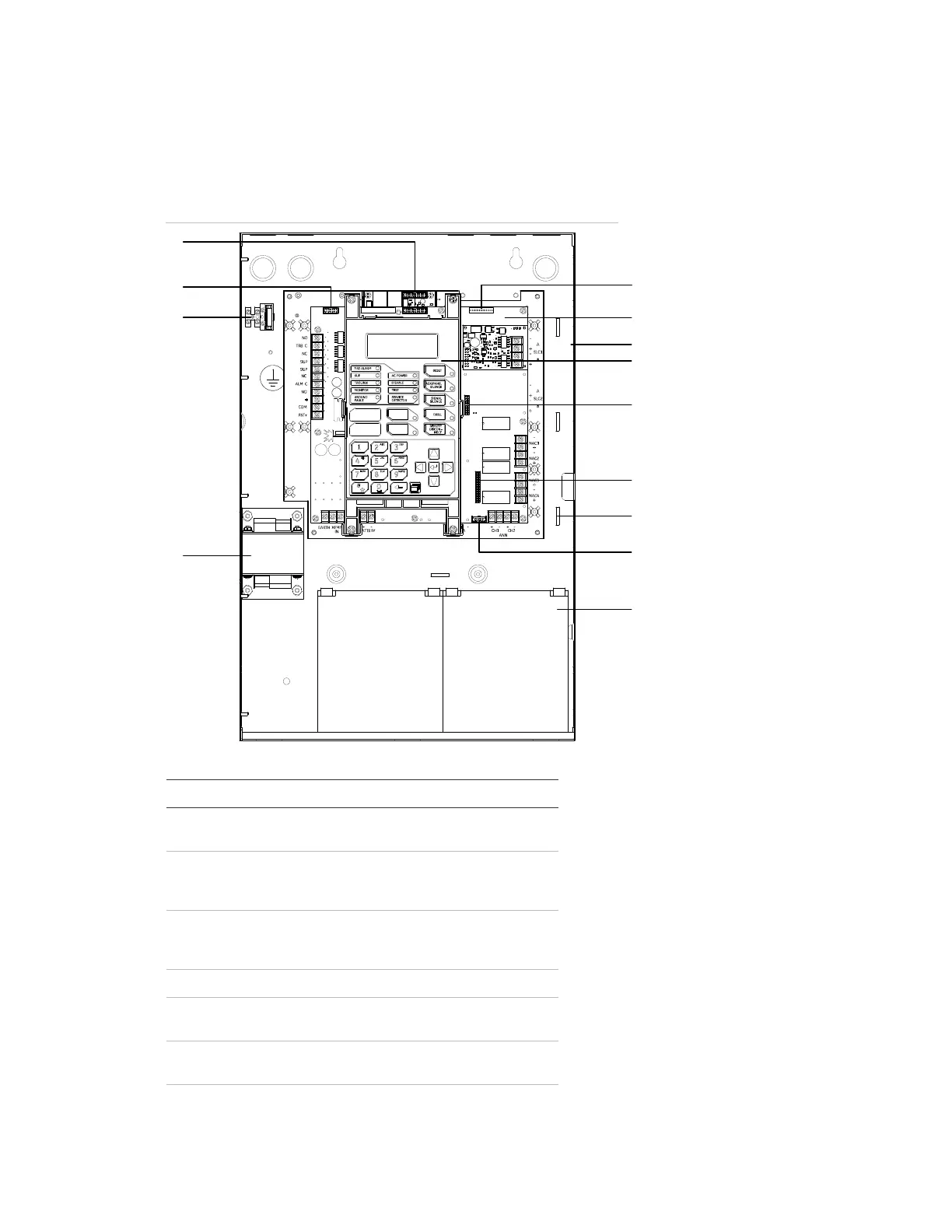
Component descriptions
The control panel contains the following components.
Component layout
1
2
3
4
5
8
7
9
10
6
11
12
1
3
00:00:00 01/01/07
,
Item Description
1 Transformer: Changes 120 or 230 volt AC supply voltage to 24
volt AC
2 Main AC wiring block and fuse holder: Provides connections
for 120 or 230 volt AC (primary power) from dedicated service.
Includes a primary power fuse (5 A).
3 RS-232 card connector (J3): Provides a connection for the
optional RS-232 card for connecting a printer or downloading
from the configuration utility
4 Dialer card connection (J8)
5 Ethernet card connector (J1): Provides a connection for the
optional ethernet card
6 Main circuit board: Provides connections for all circuits. Also
includes the operator interface.

Table of Contents

Related product manuals