EasyManua.ls Logo

GOK SmartBox 4 - Page 10

GOK SmartBox 4
28 pages
Print Icon
To Next Page IconTo Next Page
To Next Page IconTo Next Page
To Previous Page IconTo Previous Page
To Previous Page IconTo Previous Page
Loading...
SmartBox
®
4 / SmartBox
®
4 PRO
10 / 28 part no. 28 400 57 d
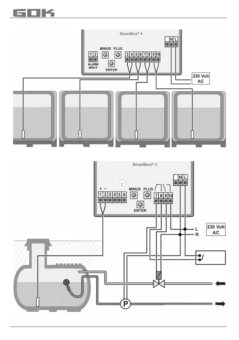
Fuel oil tank - wiring example SmartBox
®
4 PRO
Rain water reservoir - wiring example SmartBox
®
4
Oil tank
Level
probe
Water for domestic use
Level
probe
Relay 7- 8 = break contact
=> pump safe to run dry
Relay 9-10 = make contact
=> automatic backfeed
control system
Storm water reservoir
Feed pump
Drinking water network
Solenoid valve for backfeed
Optional
switch

Related product manuals