EasyManua.ls Logo

Gree GMV-N22G/A3A-K

Gree GMV-N22G/A3A-K
276 pages
To Next Page IconTo Next Page
To Next Page IconTo Next Page
To Previous Page IconTo Previous Page
To Previous Page IconTo Previous Page
Loading...
GREE GMV5 INDOOR UNIT SERVICE MANUAL
98
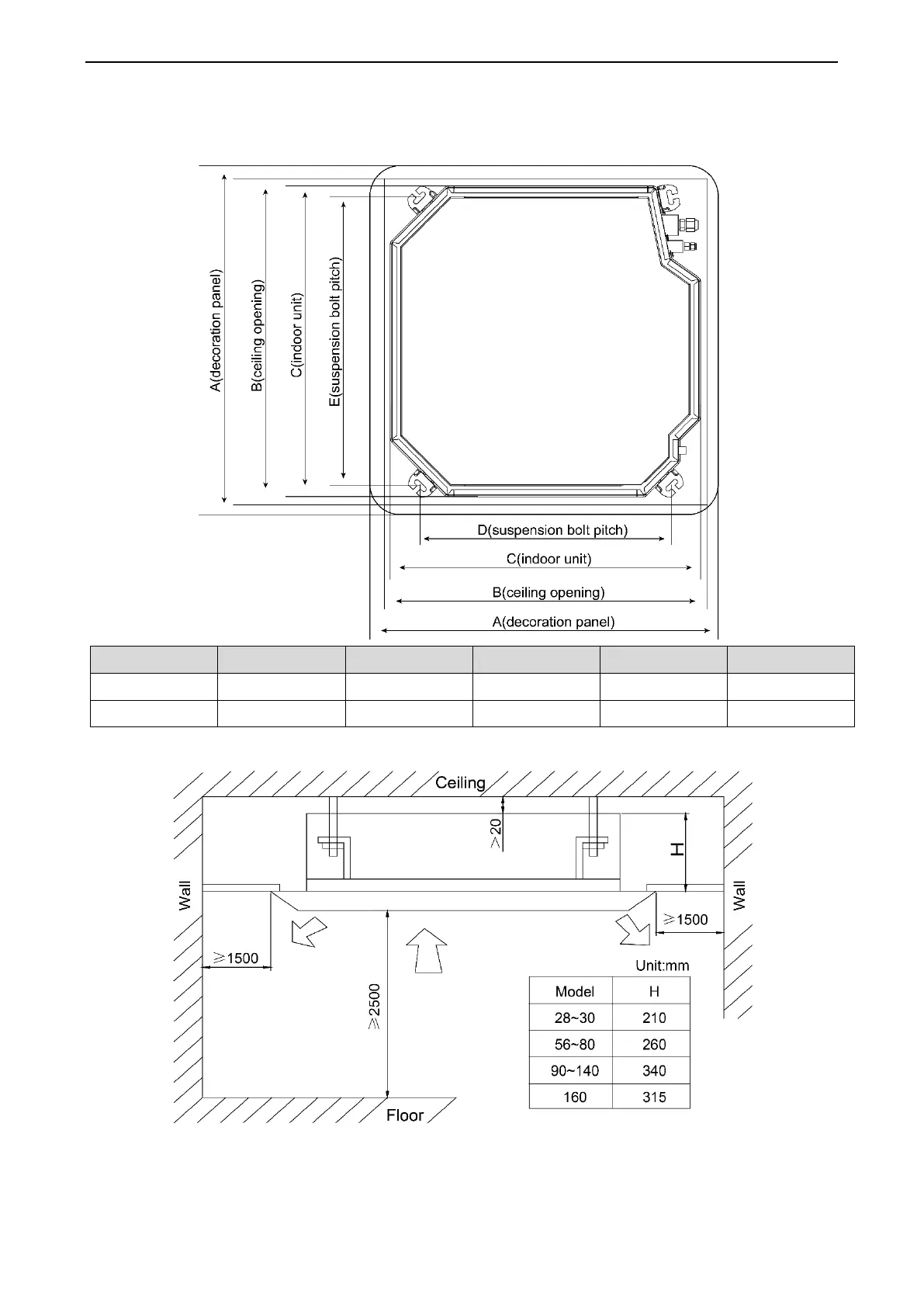
3.4 Installation of 4-way Cassette Type unit
3.4.1 Outline and installation dimension
Model
A
B
C
D
E
28~140
950
890
840
680
780
160
1040
975
910
787
840
3.4.2 Installation space
3.4.3 Installation notice
The unit shall be installed by the professional personnel according to this installation instruction
to ensure proper use.

Table of Contents

Other manuals for Gree GMV-N22G/A3A-K

Related product manuals