EasyManua.ls Logo

Gree GMV-N22G/A3A-K

Gree GMV-N22G/A3A-K
276 pages
To Next Page IconTo Next Page
To Next Page IconTo Next Page
To Previous Page IconTo Previous Page
To Previous Page IconTo Previous Page
Loading...
GREE GMV5 INDOOR UNIT SERVICE MANUAL
124
maintenance.
The installation site should be far away from heat source, inflammable gas and smoke.
Keep the air handling unit, power supply wiring and transmission wiring at least 1 m away from
televisions and radios. This is to prevent image interference and noise in those electrical
appliances (Noise may be generated depending on the conditions under which the electric wave
is generated, even if 1 m is kept).
Make sure the electronic expansion valve is installed in an upright position.
3.14.4 Selection of air switch and power cord
Model
Power Cord Size
Air Switch
Capacity(A)
Ground Wire
Power Cord
Minimum Sectional
Area(mm
2
)
Minimum Sectional
Area(mm
2
)
GMV-N36U/A-T
220-240V/1ph/50Hz & 208-
230V/1ph/60Hz
6
1.0
1.0
GMV-N71U/A-T
6
1.0
1.0
GMV-N140U/A-T
6
1.0
1.0
GMV-N280U/A-T
6
1.0
1.0
GMV-N560U/A-T
6
1.0
1.0
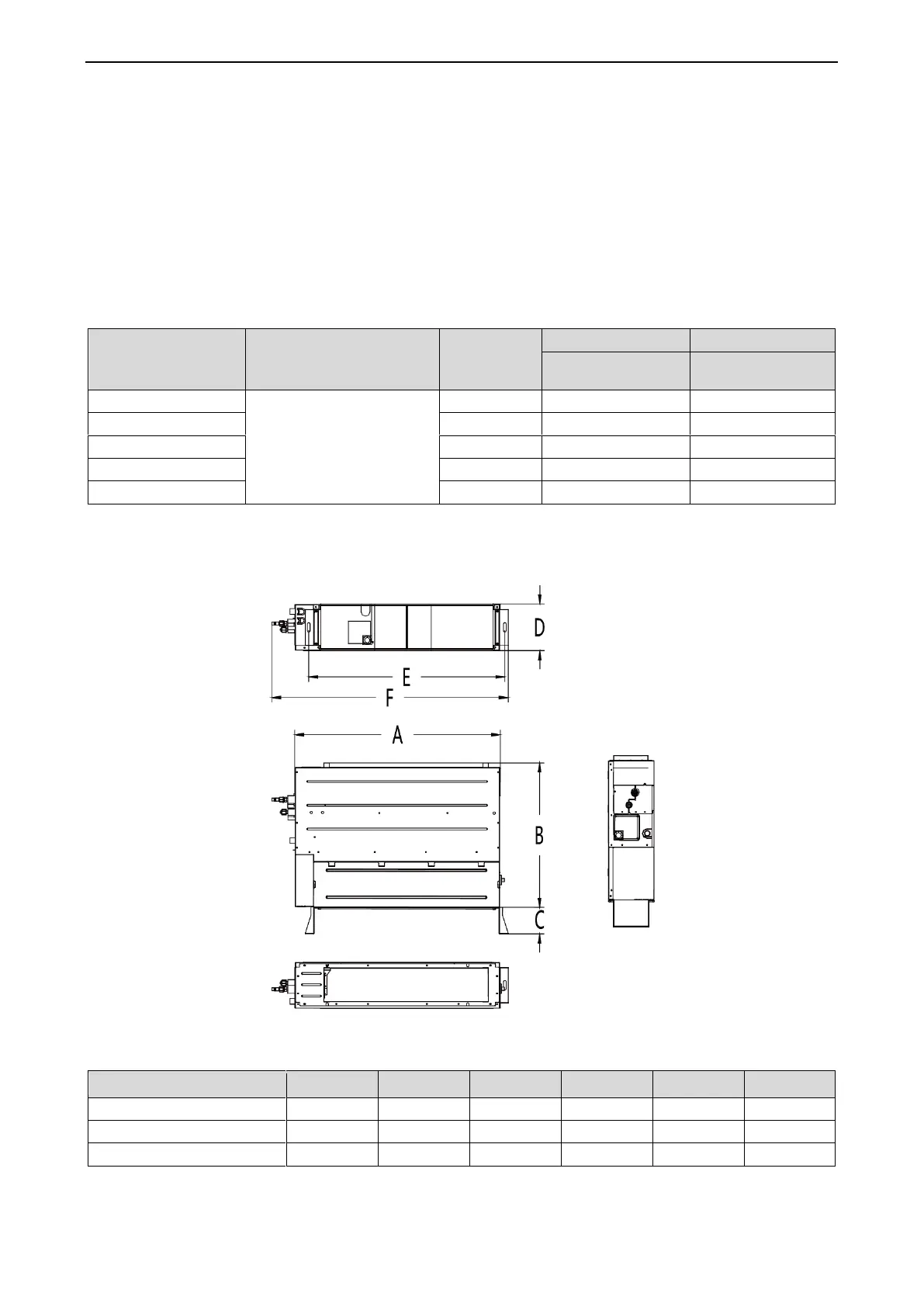
3.15 Installation of Concealed Floor Standing Type
3.15.1 Outline and installation dimension
Below are dimensions of A, B, C, etc. for different models:
Unit: mm
Model
A
B
C
D
E
F
GMV-ND22~36ZA/A-T
700
615
120
200
665.5
837
GMV-ND45ZA/A-T
900
615
120
200
865.5
1045
GMV-ND56~71ZA/A-T
1100
615
120
200
1065.5
1236

Table of Contents

Other manuals for Gree GMV-N22G/A3A-K

Related product manuals