EasyManua.ls Logo

Gree GMV-N22G/A3A-K

Gree GMV-N22G/A3A-K
276 pages
To Next Page IconTo Next Page
To Next Page IconTo Next Page
To Previous Page IconTo Previous Page
To Previous Page IconTo Previous Page
Loading...
GREE GMV5 INDOOR UNIT SERVICE MANUAL
123
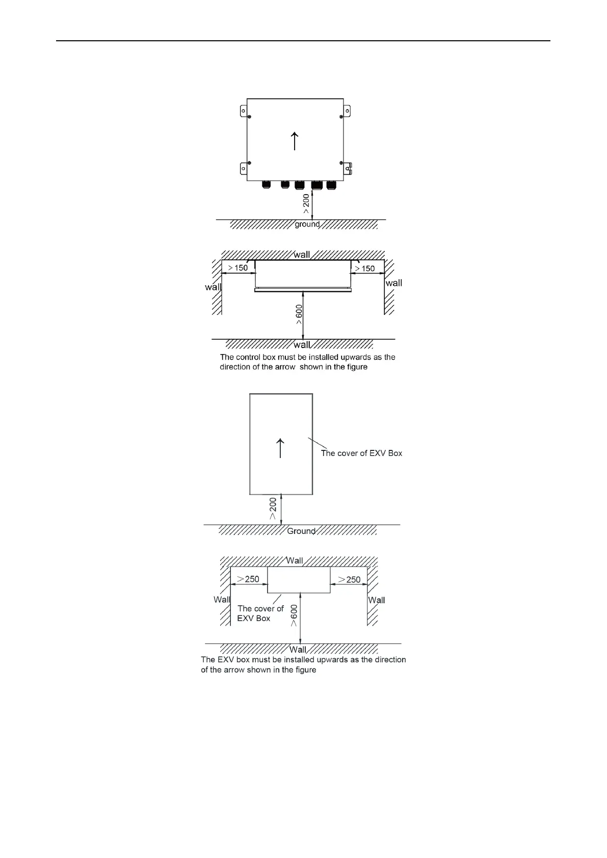
3.14.2 Installation space
(1) Maintenance space of control space (Unit: mm):
(2) Maintenance space of EXV box (Unit: mm):
3.14.3 Installation notice
The EXV box can be installed inside and outside. The control box should be installed inside.
Do not install the EXV box in or on the outdoor unit.
Do not put the option boxes in direct sunlight. Direct sunlight will increase the temperature inside
the option boxes and may reduce its lifetime and influence its operation.
Choose a flat and strong mounting surface.
Make sure there is enough free space in front and in the side of the AHU-KIT unit for future

Table of Contents

Other manuals for Gree GMV-N22G/A3A-K

Related product manuals