EasyManua.ls Logo

Gree GMV-N22G/A3A-K

Gree GMV-N22G/A3A-K
276 pages
To Next Page IconTo Next Page
To Next Page IconTo Next Page
To Previous Page IconTo Previous Page
To Previous Page IconTo Previous Page
Loading...
GREE GMV5 INDOOR UNIT SERVICE MANUAL
104
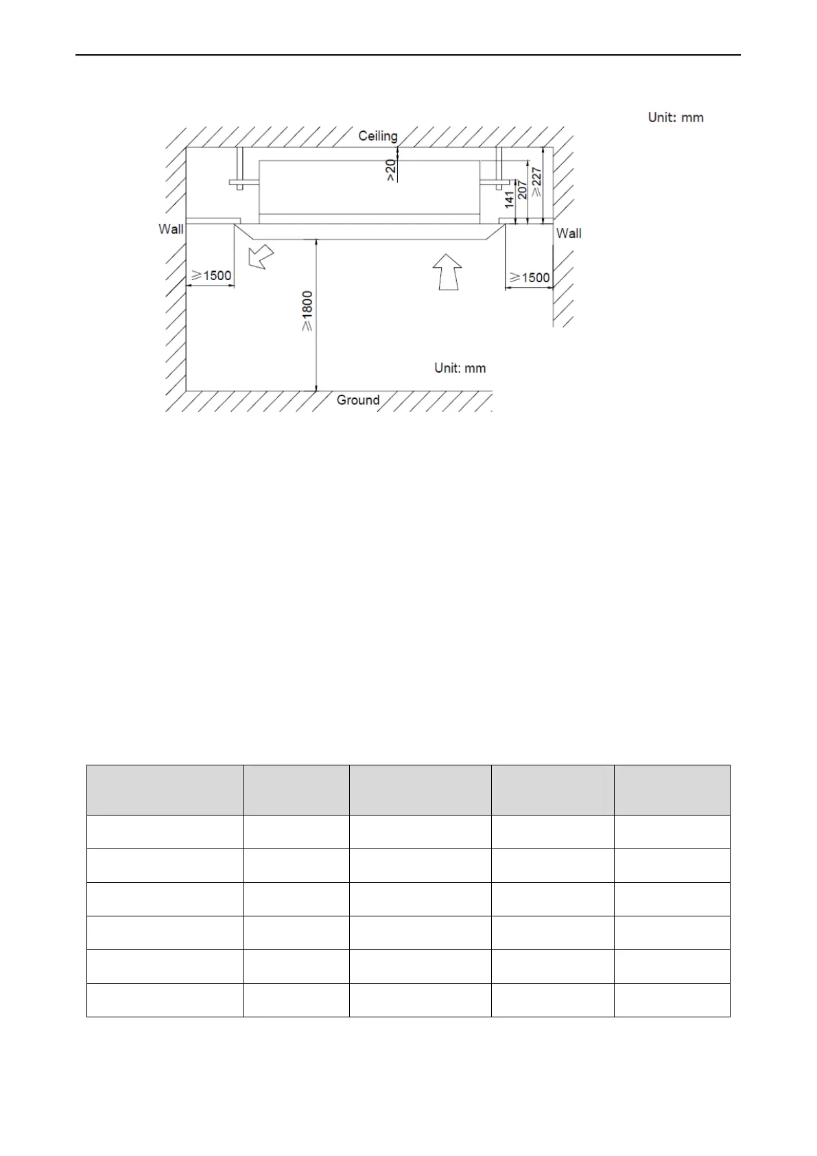
3.7.2 Installation space
3.7.3 Installation notice
The unit shall be installed by the professional personnel according to this installation instruction
to ensure proper use.
Please contact the local Gree appointed service center before installation. Any
malfunctioncaused by the unit that is not installed by the Gree appointed service center would
probably not be dealt with on time because of the inconvenience of the business contact.
It should be guided under the professional personnel when the air conditioner unit is moved to
other place.
The unit shall be installed in accordance with national standards or local regulations.
Only qualified personnel can carry out installation work, please contact with local dealer before
installation.
Make sure all the installation work completed before energizing.
3.7.4 Selection of air switch and power cord
Model
Power Cord Size
Air Switch apacity
(A)
Minimum Sectional
Area of Ground Wire
(mm
2
/AWG)
Minimum Sectional
Area of Power Cord
(mm
2
/AWG)
GMV-ND22TD/A-T
220-240V/50Hz
208-230V/60Hz
6
1.0/AWG18
1.0/AWG18
GMV-ND28TD/A-T
220-240V/50Hz
208-230V/60Hz
6
1.0/AWG18
1.0/AWG18
GMV-ND36TD/A-T
220-240V/50Hz
208-230V/60Hz
6
1.0/AWG18
1.0/AWG18
GMV-ND45TD/A-T
220-240V/50Hz
208-230V/60Hz
6
1.0/AWG18
1.0/AWG18
GMV-ND50TD/A-T
220-240V/50Hz
208-230V/60Hz
6
1.0/AWG18
1.0/AWG18
GMV-ND56TD/A-T
220-240V/50Hz
208-230V/60Hz
6
1.0/AWG18
1.0/AWG18

Table of Contents

Other manuals for Gree GMV-N22G/A3A-K

Related product manuals