EasyManua.ls Logo

Gree GMV5 - Schematic Diagram of Piping Sequence

Gree GMV5
321 pages
Print Icon
To Next Page IconTo Next Page
To Next Page IconTo Next Page
To Previous Page IconTo Previous Page
To Previous Page IconTo Previous Page
Loading...
GREE Photovoltaic Direct-driven Inverter Multi VRF Units
38
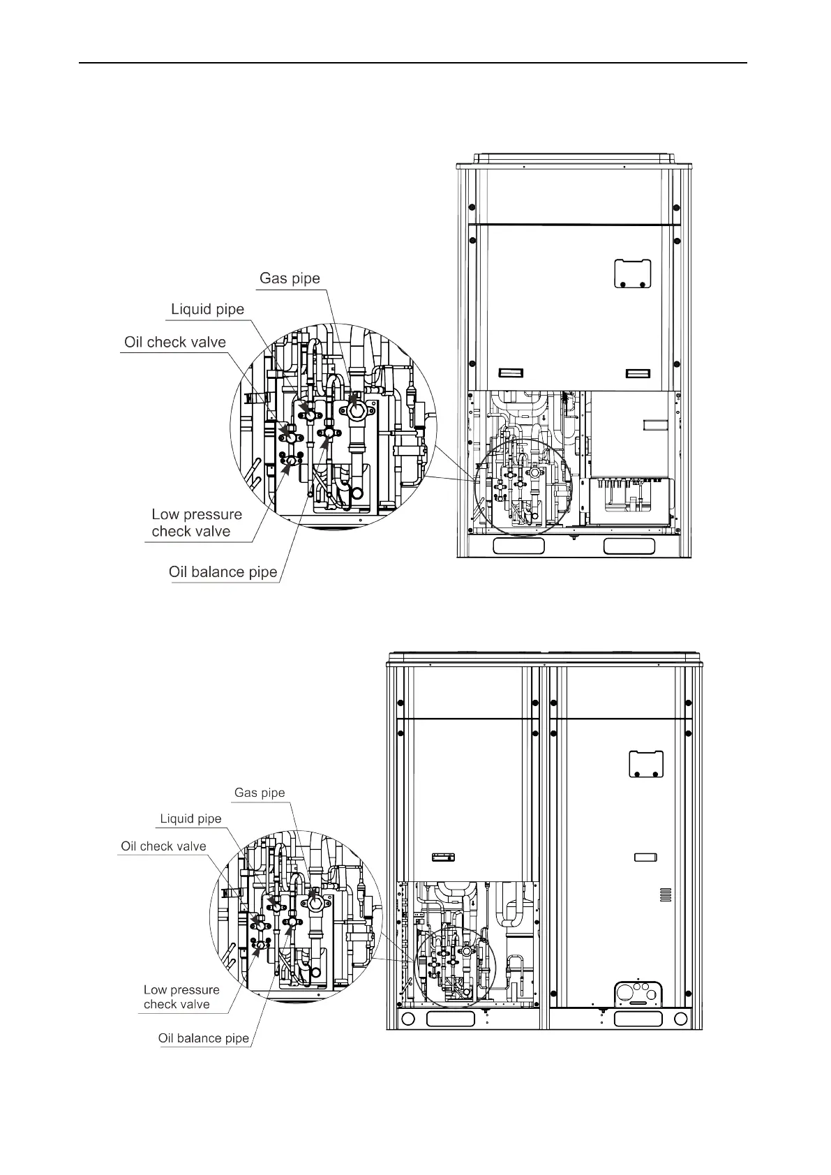
5.2 Schematic Diagram of Piping Sequence
GMV-Y72WM/C-F(U)
GMV-Y96WM/C-F(U) and GMV-Y120WM/C-F(U).

Table of Contents