EasyManua.ls Logo

Gree SUPER+ MULTI ULTRA Series - Outline Dimension and Servicing Space of FXA3 B-D

Gree SUPER+ MULTI ULTRA Series
196 pages
Print Icon
To Next Page IconTo Next Page
To Next Page IconTo Next Page
To Previous Page IconTo Previous Page
To Previous Page IconTo Previous Page
Loading...
Super Free Match
Service Manual
INSTALLATION
91
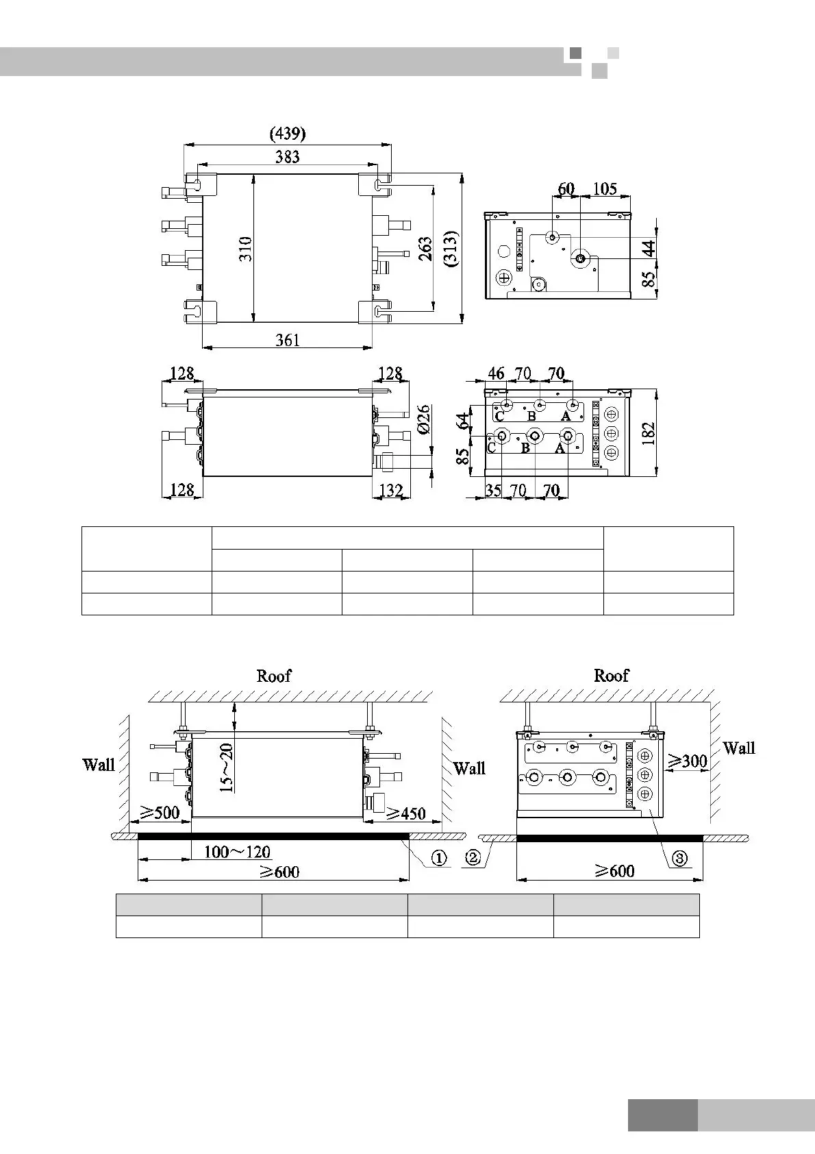
5.7 Outline Dimension and Servicing Space of FXA3B-D
1) Outline dimension
Sorts
Indoor unit side (mm)
Outdoor unit side
(mm)
Port A Port B Port C
Liquid pipe Φ6.5 Φ6.5 Φ6.5 Φ9.7
Gas liquid Φ16.3 Φ16.3 Φ16.3 Φ16.3
2) Installation and service space
NO.
Name Servicing space Ceiling Electrical box side

Table of Contents

Related product manuals