EasyManua.ls Logo

Gree U-MATCH GUHD09NK3CO

Gree U-MATCH GUHD09NK3CO
264 pages
To Next Page IconTo Next Page
To Next Page IconTo Next Page
To Previous Page IconTo Previous Page
To Previous Page IconTo Previous Page
Loading...
A/A DC INVERTER U-MATCH AIR CONDITIONERS MAINTENANCE
221
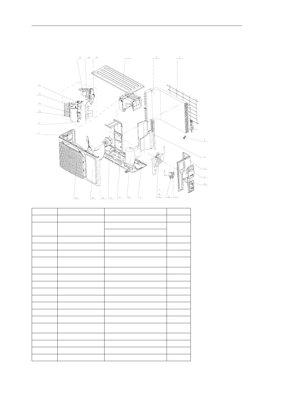
5 EXPLODED VIEWS AND SPARE PART LIST
5.1 Outdoor Unit
Model: GUHD09NK3CO/GUHD12NK3CO
Exploded View
NO. Name of Part Part Code Qty
1
Top Cover Sub-Assy
01253454 1
01125387
2 Condenser Assy
01125386
1
3
Rear Grill
01473042 1
4
Temperature Sensor
3900028008 1
5
Clapboard Sub-Assy
01233385 1
6
Right Side Plate
Sub-Assy
0130317801 1
7
Big Handle
26233433 1
8
Valve Support
01703089P 1
9
Cut-off Valve
07130239 1
10
Valve
07100005 1
11
Magnet Coil
4300040050 1
12
4-way Valve
430004022 1
13
4-way Valve Assy
03123385 1
14
Chassis Sub-assy
01203912P 1
15
Compressor and
fittings
00103209 1
16
Motor Support
01703058 1
17
Fan Motor
1501306713 1
18
Axial Flow Fan
10333004 1
19
Front Panel
01533027P 1

Table of Contents

Related product manuals