EasyManua.ls Logo

Grill'D Aurora - Page 81

Grill'D Aurora
Print Icon
To Next Page IconTo Next Page
To Next Page IconTo Next Page
To Previous Page IconTo Previous Page
To Previous Page IconTo Previous Page
Loading...
81
725
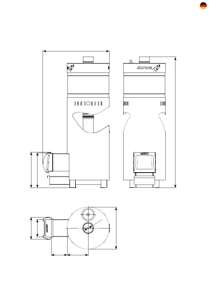
Aurora 160 TRIO Long
460
1430
240
210
385
375
615
230170
ɸ115

Table of Contents

Related product manuals