EasyManua.ls Logo

HDG F20 - Page 25

Default Icon
88 pages
Print Icon
To Next Page IconTo Next Page
To Next Page IconTo Next Page
To Previous Page IconTo Previous Page
To Previous Page IconTo Previous Page
Loading...
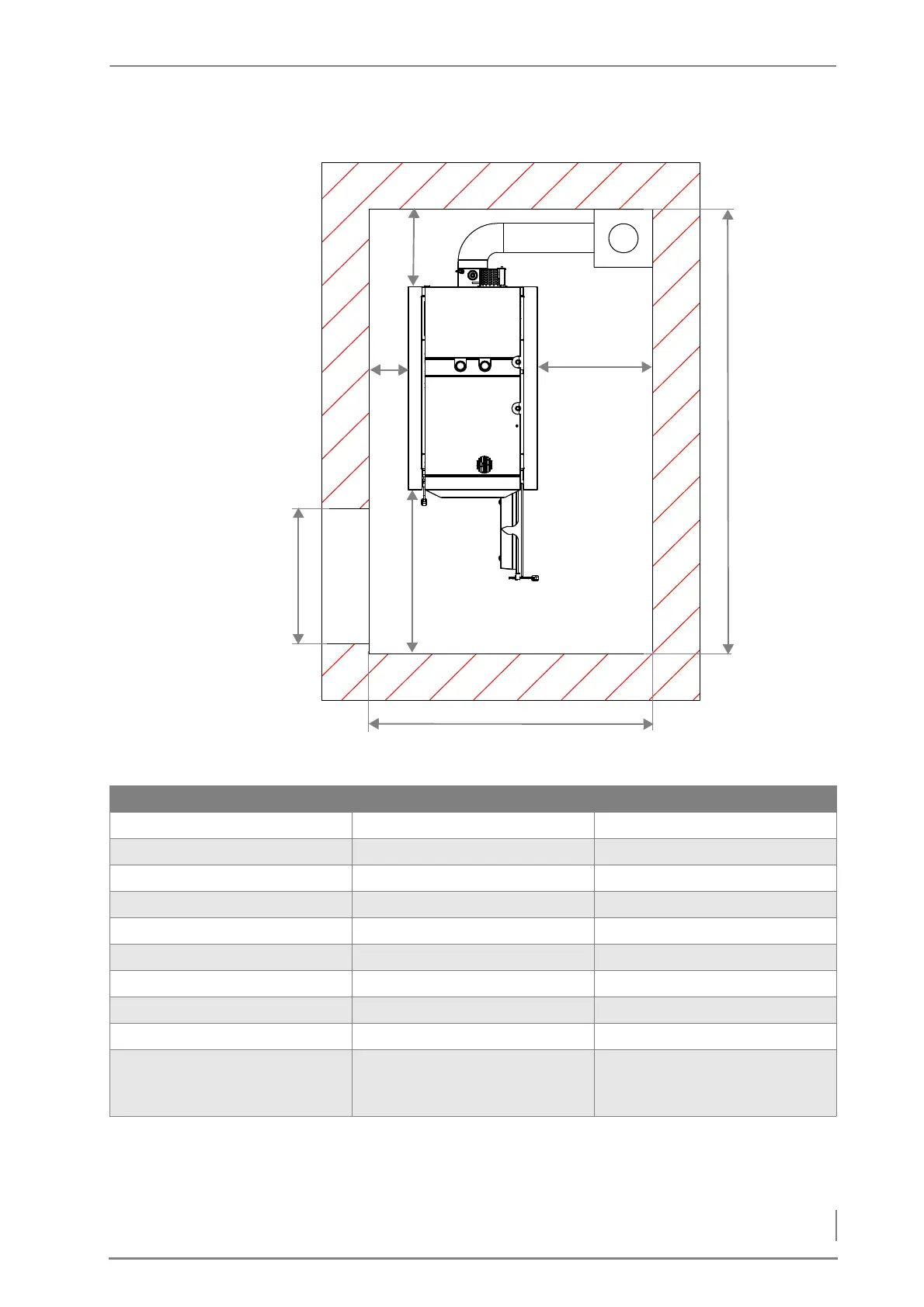
4 Planning and installation – Structural requirements
25
*does not apply in connection with HDG automatic ignition system / automatic
cleaning system
Figure 4/2 - Required room sizes and minimum clearances
G
F
C
B
A
E
D
HDG F20/25/30 HDG F40/50
A at least 300 mm at least 300 mm
B at least 100 (or 600) mm at least 100 (or 600) mm
C at least 600 (or 100*) mm at least 600 (or 100*) mm
D 800 mm 800 mm
E 660 mm 760 mm
F at least 2200 mm at least 2300 mm
G at least 1400 mm at least 1500 mm
Minimum ceiling height 1900 mm 2000 mm
Recommended room height 2300 mm 2300 mm
min. installation dimensions
(without cladding and
attachments)
1025 x 650 x 1585 mm 1075 x 750 x 1645 mm
Table 4/2 - Room sizes and minimum clearances

Table of Contents