EasyManua.ls Logo

Hitachi Econofresh - Page 28

Hitachi Econofresh
408 pages
Print Icon
To Next Page IconTo Next Page
To Next Page IconTo Next Page
To Previous Page IconTo Previous Page
To Previous Page IconTo Previous Page
Loading...
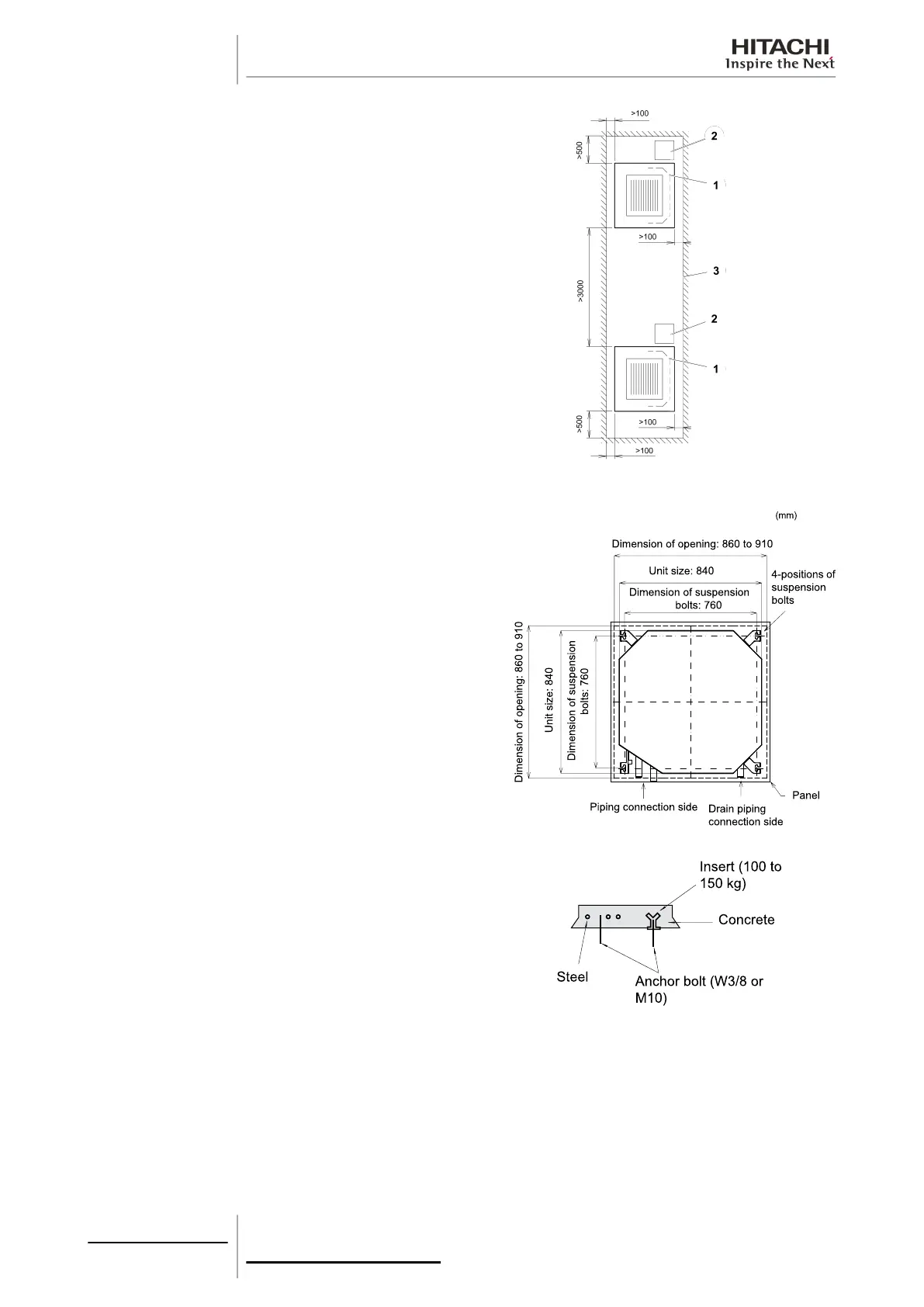
Combined installation
1. Gas refrigerant and drain connection.
2. Unit inspection and maintenance access.
3. Walls close to the unit.
Check that the ceiling surface where the air panel is to be installed
is completely horizontal.
Check that the drain hose can be installed maintaining the
necessary down-slope.
Installation
Cut the area of the unit in the false ceiling and reinforce the opening
made.
Install the M10 (3/8) suspension bolts depending on the type of
surface:
Concrete beams
2 Unit installation
16
SMGB0063 rev. 1 - 10/2010

Table of Contents

Related product manuals