EasyManua.ls Logo

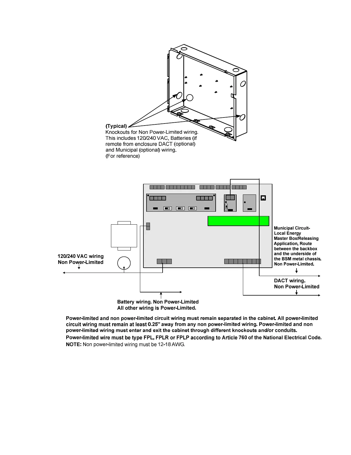
Honeywell Gamewell 7100 Series - Figure 11 Power-Limited;Non Power-Limited Wiring

Honeywell Gamewell 7100 Series
50 pages
To Next Page IconTo Next Page
To Next Page IconTo Next Page
To Previous Page IconTo Previous Page
To Previous Page IconTo Previous Page
Loading...
9000-0447 Rev. I
Page 42 of 42
Figure 11 Power-Limited/Non Power-Limited Wiring

Table of Contents

Related product manuals