EasyManua.ls Logo

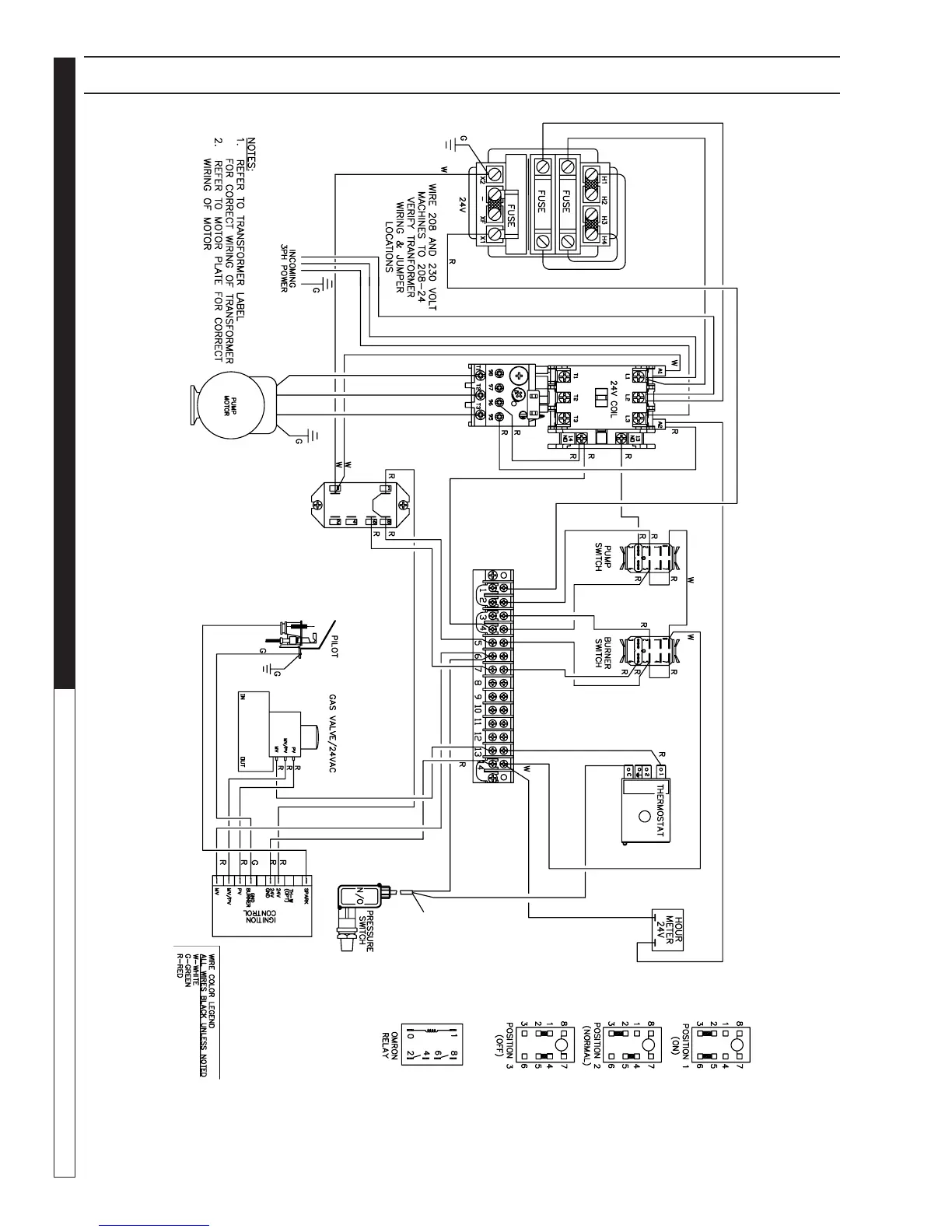
Hotsy 982SS - Wiring Diagrams; 3-Phase Electric Ignition Models

Hotsy 982SS
48 pages
Print Icon
To Next Page IconTo Next Page
To Next Page IconTo Next Page
To Previous Page IconTo Previous Page
To Previous Page IconTo Previous Page
Loading...
97-6574 • HOTSY 900-1400 GAS FIRED • REV. 10/05
PRESSURE WASHER Wiring Diagram
40
900/1400 3 PH W/ELECTRIC IGNITION

Related product manuals