EasyManua.ls Logo

Hotsy 982SS - Page 41

Hotsy 982SS
48 pages
Print Icon
To Next Page IconTo Next Page
To Next Page IconTo Next Page
To Previous Page IconTo Previous Page
To Previous Page IconTo Previous Page
Loading...
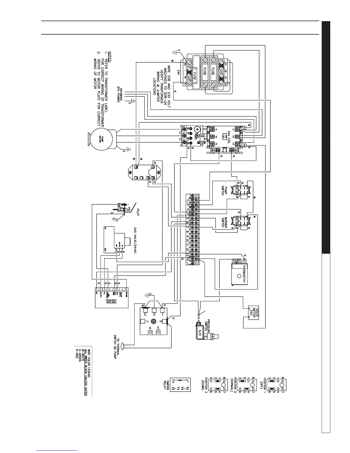
97-6574 • HOTSY 900-1400 GAS FIRED • REV. 10/05
PRESSURE WASHER WARRANTY Wiring Diagram
41
900/1400 3 PH W/ELECTRIC IGNITION & THERMAL SHUTDOWN

Related product manuals