EasyManua.ls Logo

HP ProLiant DL360e Gen8 - Page 60

HP ProLiant DL360e Gen8
116 pages
To Next Page IconTo Next Page
To Next Page IconTo Next Page
To Previous Page IconTo Previous Page
To Previous Page IconTo Previous Page
Loading...
Hardware options installation 60
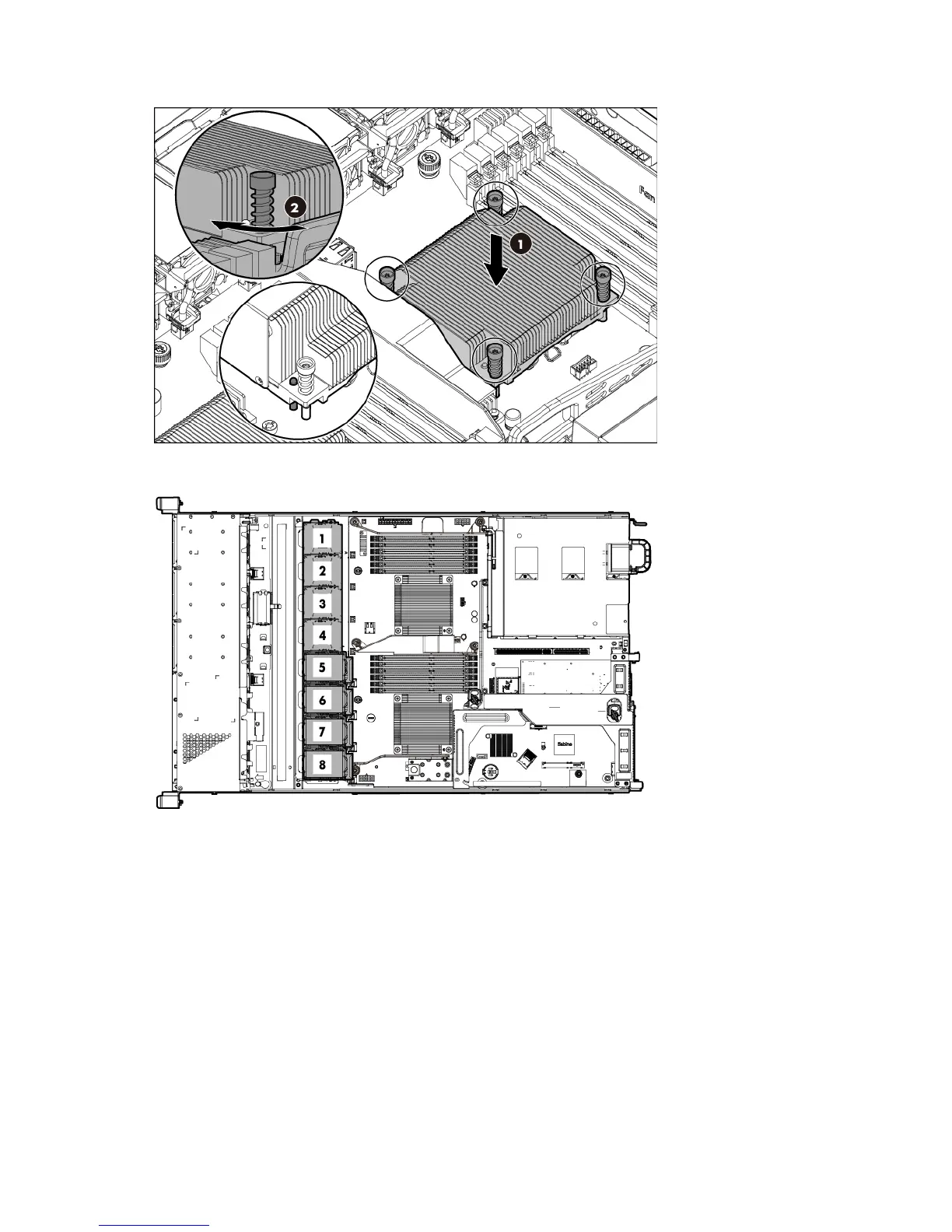
c.
Finish the installation by completely tightening the screws in the same sequence.
13. Locate the fan bays 1, 2, 3, and 4.

Table of Contents

Other manuals for HP ProLiant DL360e Gen8

Related product manuals