EasyManua.ls Logo

HP ProLiant DL385p - Page 82

HP ProLiant DL385p
140 pages
Print Icon
To Next Page IconTo Next Page
To Next Page IconTo Next Page
To Previous Page IconTo Previous Page
To Previous Page IconTo Previous Page
Loading...
Hardware options installation 82
15.
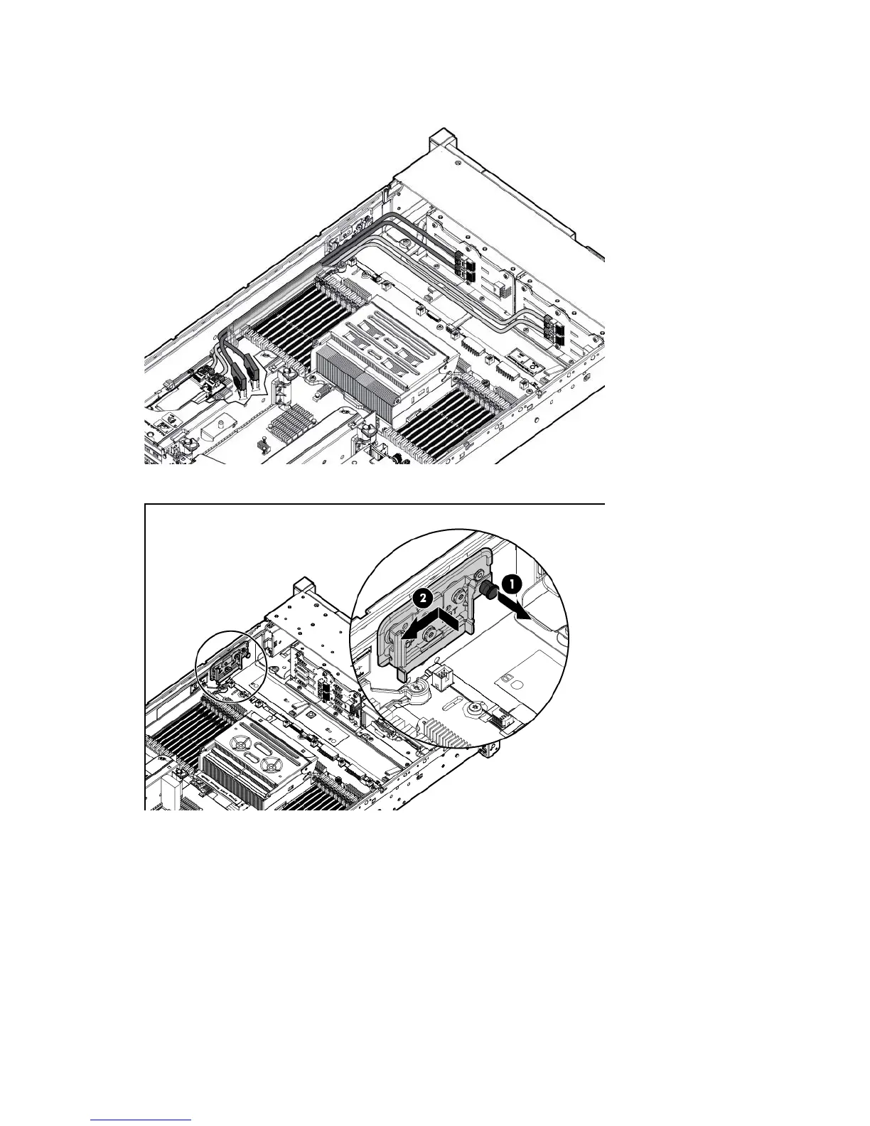
Connect the end of each SAS signal cable to the SAS backplane, and then route the SAS signal cables
behind the cable guide. Do not connect the other ends yet.
16. Install the fan bracket. Be sure that the cables are properly routed in the channel along the fan bracket.

Table of Contents

Other manuals for HP ProLiant DL385p

Related product manuals