EasyManua.ls Logo

Huawei EMMA Pro - Page 33

Huawei EMMA Pro
63 pages
Print Icon
To Next Page IconTo Next Page
To Next Page IconTo Next Page
To Previous Page IconTo Previous Page
To Previous Page IconTo Previous Page
Loading...
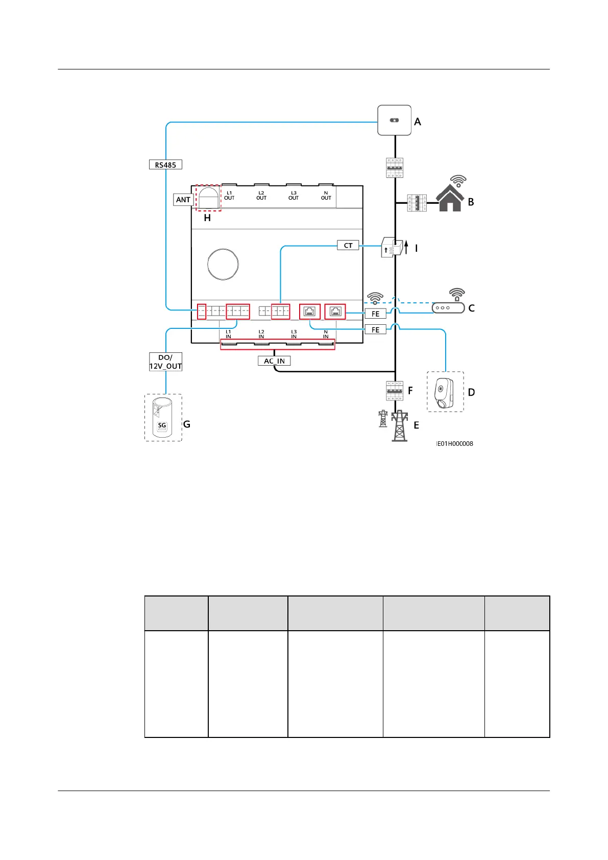
Figure 5-2 Cable connection diagram: external CT connection (current > 63 A)
(A) Inverter (B) Residential load (C) Router
(D) Charger (E) Power grid (F) Main circuit breaker
(G) SG Ready heat pump (H) External WLAN
antenna
(I) External CT
Table 5-1 Recommended cable specications
Item
Name Type Conductor Cross-
Sectional Area
Source
AC_IN
AC_OUT
AC input
power cable
AC output
power cable
Outdoor copper
cable
(temperature
resistance ≥
90°C)
Internal CT
connection: 16
mm
2
External CT
connection: 6
mm
2
to 16
mm
2
Prepared
by the
customer
EMMA-(A01, A02)
User Manual 5 Electrical Connections
Issue 05 (2024-01-19) Copyright © Huawei Digital Power Technologies Co., Ltd. 27

Related product manuals