EasyManua.ls Logo

Huawei SUN2000-3.8KTL-USL0 - Wall-Mounted Installation

Huawei SUN2000-3.8KTL-USL0
170 pages
To Next Page IconTo Next Page
To Next Page IconTo Next Page
To Previous Page IconTo Previous Page
To Previous Page IconTo Previous Page
Loading...
SUN2000-(3.8KTL-11.4KTL)-USL0
User Manual
4 System Installation
Huawei Proprietary and Confidential
Copyright © Huawei Technologies Co., Ltd.
26
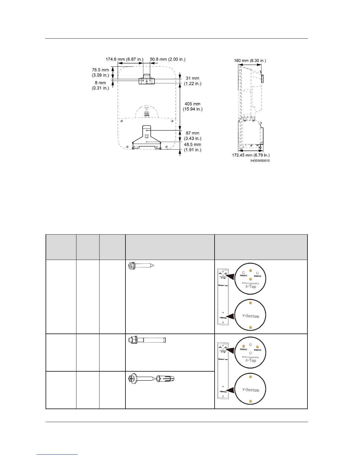
Figure 4-7 Mounting bracket location (SUN2000-9KTL/10KTL/11.4KTL-USL0)
4.4.1 Wall-Mounted Installation
Prerequisites
User-supplied bolts are required for wall-mounted installation.
Table 4-1 User-supplied bolts
Load-Bea
ring
Structure
Tighte
ning
Screw
Screw
Quantit
y
Screw Appearance
Hole Combination in the
Marking-off Template
Frame
post
(recomme
nded)
M6
tapping
screw
4 PCS
Brick
wall/Fiber
-cement
composite
panel
M6
expans
ion
bolt
4 PCS
Plywood
M6
expans
ion
anchor
screw
4 PCS

Table of Contents

Other manuals for Huawei SUN2000-3.8KTL-USL0

Related product manuals