EasyManua.ls Logo

Huawei UPS5000-E-200K-SM - Page 52

Huawei UPS5000-E-200K-SM
300 pages
Print Icon
To Next Page IconTo Next Page
To Next Page IconTo Next Page
To Previous Page IconTo Previous Page
To Previous Page IconTo Previous Page
Loading...
UPS5000-E-(50 kVA-300 kVA)
User Manual (50 kVA Power Modules)
3 Installation
Huawei Proprietary and Confidential
Copyright © Huawei Technologies Co., Ltd.
43
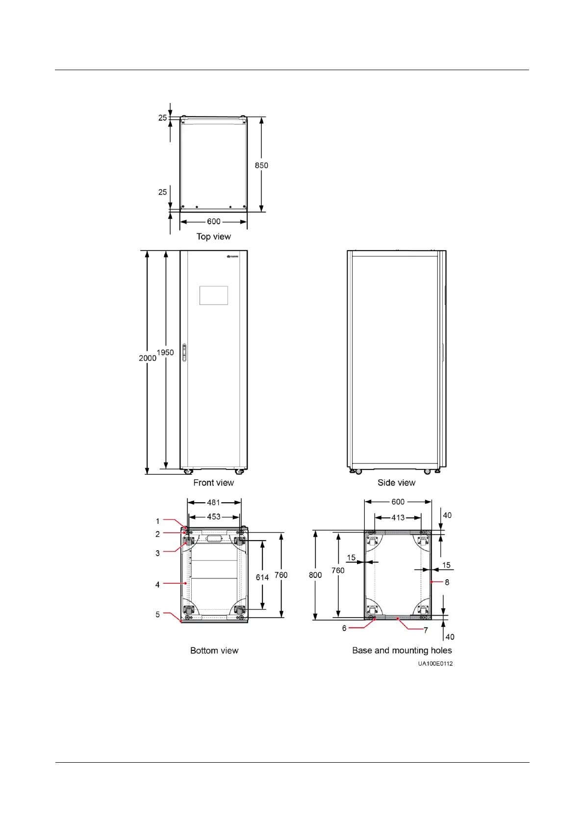
Figure 3-1 UPS5000-E-200K-SM and UPS5000-E-300K-SM/SMT dimensions (unit: mm)
(1) Front door
(2) Foot
(3) Caster
(4) Base
(5) Rear panel
(6) Base installation hole
(7) Beam
(8) Side beam

Table of Contents

Other manuals for Huawei UPS5000-E-200K-SM

Related product manuals