EasyManua.ls Logo

Hunter 50 - Boom Vang Details

Hunter 50
196 pages
Print Icon
To Next Page IconTo Next Page
To Next Page IconTo Next Page
To Previous Page IconTo Previous Page
To Previous Page IconTo Previous Page
Loading...
Hu
nt
e
r
50
• Sails and Ri
gg
in
g
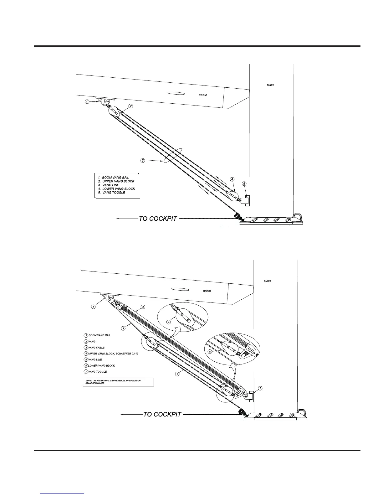
12.1
1
R
OPE VANG DETAILS
(
STANDARD
)
R
IGID VANG
(
FURLING OPTION
)
B
oom Vang Detail
s

Table of Contents

Related product manuals