EasyManua.ls Logo

Husqvarna 536LiBX - Page 37

Husqvarna 536LiBX
43 pages
Print Icon
To Next Page IconTo Next Page
To Next Page IconTo Next Page
To Previous Page IconTo Previous Page
To Previous Page IconTo Previous Page
Loading...
English – 37
Diagnosis and troubleshooting
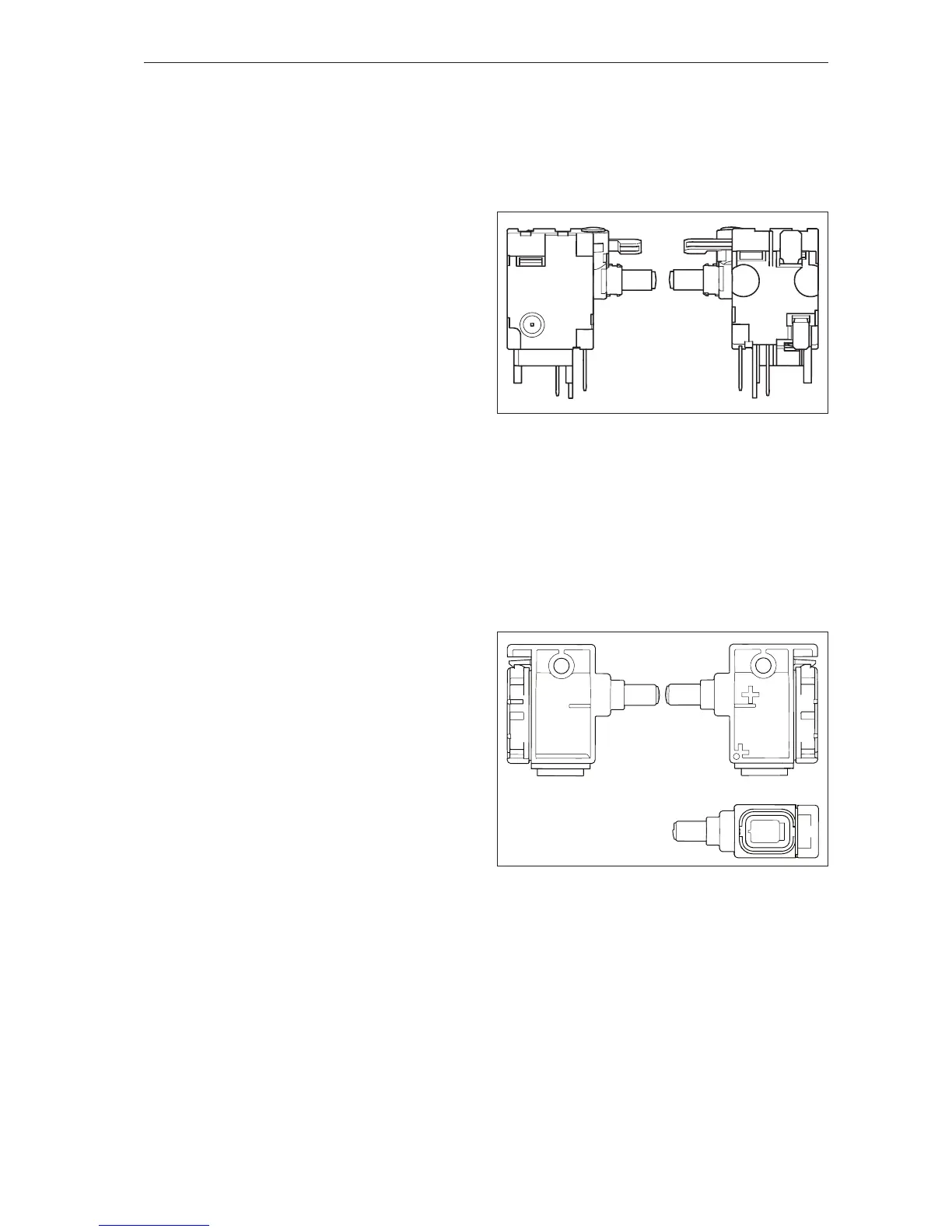
Fig 3
Fig 4
1 2 3 4 5 6
M1
B-
B+
B-
M
5.4 Troubleshooting the main switch
For products with S/N: -20170000000 (LiPX),
-20170000000 (LiP4), -20170000000 (LiPT5). See
gure 3.
The switch used in professional battery products
from Husqvarna has two functions, to supply cur-
rent to the control unit and the electric motor, and
act as a position sensor for the variable speed
control. All these functions can easily be tested and
veried using a resistance meter.
Note: The switch should not be depressed more
than 6 mm and not to its end position when
testing.
Measure between B+ and B1 when the switch is
not depressed. The result should be open circuit.
Measure between B+ and B1 when the switch is
depressed. The result should be closed circuit.
Measure between pin 2 and pin 5 when the
switch is not depressed. The result should be
closed circuit.
Measure between pin 2 and pin 5 when the switch
is depressed. The result should be 50kΩ ± 25 %.
Measure between B1 and Pin 1. The result should
always be closed circuit.
If all readings are within specied limits, the switch
is OK.
For products with S/N: 20170000000- (LiPX),
20170000000- (LiP4), 20170000000- (LiPT5). See
gure 4.
Use the Common Service Tool to check the func-
tionality of the main switch.

Related product manuals