EasyManua.ls Logo

Hydro atos E-BM-AC-05F - Page 24

Default Icon
42 pages
Print Icon
To Next Page IconTo Next Page
To Next Page IconTo Next Page
To Previous Page IconTo Previous Page
To Previous Page IconTo Previous Page
Loading...
G100
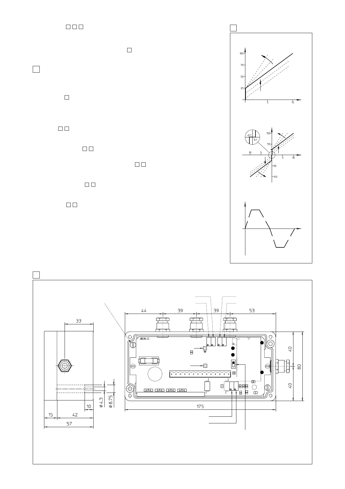
9 E-RP-AC-05F TOPOGRAPHICAL VIEW OF REGULATIONS AND DIMENSIONS [mm]
8 RAMP AND SETTINGS
E-RP-AC-01F ADJUSTMENT
Current [%]
Scale
adjustment
Bias adjustment
Reference [V]
Reference [V]
Bias S1
Scale adjustment
Bias S2
Scale
adjustment
Current [%]
Valve opening
/RR OPTION - UP AND DOWN RAMPS
P1 P2
P1 P2
E-RP-AC-05F ADJUSTMENT
7 INSTALLATION AND START-UP
It is advisable to perform calibration procedures in the order given below.
7.1 Warning
Never insert or remove the driver connector while the electronic system is powered on.
Voltages must always be measured with reference to GND (connector contact 11) or test point.
Refer to to identify components mentioned in calibration procedures.
7.2 Start-up
Factory preset adjustments may not meet the desired requirements for the specific application and
performances can be optimized by on-site re-adjustements of bias, scale and ramps potentiome-
ters, in sequence.
Connect the electronic driver according to the desired connection diagram
(see
,
)
The current supplied to the coil can be measured by a voltmeter connected between test point
(current monitor and GND)
For E-RP-AC-05F the drive enabled led (S1 or S2) shows the supplied coil.
Enabling signal, see
, .
The electronic driver operate when the contact 7 is supplied with an enabling signal (usually 24 V
DC
).
It could be useful in emergency conditions to inhibit the driver by zeroing this signal
Bias adjustment (Dead band compensation), see
, .
Supply a reference signal voltage (0V
DC
for E-RP-AC-01F and ±0,1 V
DC
for E-RP-AC-05F).
Gradually turn bias potentiometer(s) until a movement of the controlled actuator is obtained.
Turn in the opposite direction, until the actuator is stopped.
Scale adjustment see
, .
Supply max reference signal voltage (for E-RP-AC-05F driver repeat for max negative voltage) in
the specificated range and turn scale potentiometer(s) until the actuator speed reaches the desi-
red value.
Ramps (see
,
).
Turning ramp potentiometer(s) clockwise acceleration(s) and deceleration(s) can be reduced
to obtain optimization of the complete system.
12
98
98
98
1211
11
9
Time
Deadband compensation solenoid S1 P4
Scale adjust for solenoid S1 P3
Acceleration and deceleration ramp P1
Deceleration ramp (option /RR only) P2
Maximum ramp time selection SW1
- with SW1 in position 1 max ramp time is 5 seconds
- with SW1 in position 2 max ramp time is 90 seconds
Current monitor point
(mV read = mA)
Test point GND
P3 P4 P5 P6
GND
OUT (I = V)
FUSE 4A RVF
P5
* Scale adjust for solenoid S2
P6
* Deadband compensation solenoid S2
* only for E-RP-AC-05F/*
Earth connection
(cable shield)
P1 P2
SW1
1
2
Ramps, see
, , .
The internal ramp generator circuit converts a step input signal into a slowly increasing output
signal (solenoid current) .
The rise/fall time of the current is set via potentiometer P1, to a maximum time of 5 or 90 sec (swit-
ch SW1) for 0 - 100% of reference signal. The option /RR provides dissymetrical ramps, (P2) /RRE
allows external ramp setting as shown in table .
To switch off the ramp circuit connect contacts 13 and 14 on the electric connector.
986
6

Table of Contents

Related product manuals